Dane techniczne
- Powierzchnia użytkowa 143.12 m²
- Powierzchnia zabudowy 173.44 m²
- Kubatura 647.59 m³
- Kąt nachylenia dachu 38.00°
- Powierzchnia dachu 282.46 m²
- Wysokość budynku 8.37 m
- Min. wymiary działki 19.94x24.34 m
- Garaż 43.39 m²
- Pracownia Studio Z500
Technologia budowy
Ściany: gazobeton, ceramika, silikaty
Strop: betonowy, gęstożebrowy
Dach: dachówka, blachodachówka
Opis
Z284 GP2 to dom z poddaszem użytkowym i garażem dwustanowiskowym. Urozmaicona bryła, lukarny, podcięcia oraz nowoczesny charakter wykończenia elewacji decydują o jego atrakcyjności.
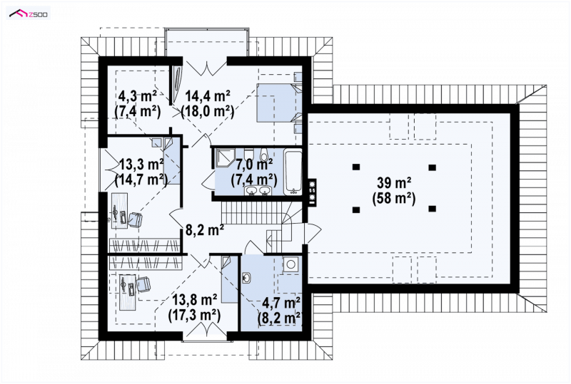
Strefa wejściowa w podcieniu prowadzi przez sień i hol z miejscem na pojemne szafy. Część reprezentacyjną tworzy przestronna kuchnia ze spiżarką, jadalnia z wyjściem na zadaszony taras oraz komfortowy salon. Na parterze znajduje się także dodatkowy pokój, który może pełnić rolę gabinetu lub sypialni gościnnej. Strefę gospodarczą wyraźnie wydzielono, znajduje się 45cm poniżej poziomu salonu i dzięki przejściu pod schodami jest bezpośrednio dostępna z domu. Na poddaszu zaplanowano 3 sypialnie, ogólnodostępną łazienkę oraz pralnię. Pokój gospodarzy posiada własną garderobę oraz balkon. Atutem projektu jest dodatkowa przestrzeń nad garażem do wykorzystania na strych lub jako dodatkowy pokój.
Dbamy o swoich Klientów, jak nikt inny!
Do każdego projektu zakupionego za pośrednictwem serwisu kreoDOM.pl otrzymasz książeczkę z rabatami na zakupy w firmach Komfort, Fachowiec, Domino Łazienki, Komandor, Witek Home i innych. Książeczka na pewno okaże się przydatna podczas urządzania Twojego wymarzonego domu!
Książeczka z rabatami do takich firm jak: Komfort, Domino Łazienki, Fachowiec, Vox, Komandor, Witek Home i innych
Gwarancja
bezpiecznych zakupów
Dodatkowe pakiety projektowe
- Kosztorys inwestorski 249,00zł
- Zestawienie materiałów 57,00 zł
- Wentylacja mechaniczna z rekuperacja 550,00 zł
- Pompa ciepła 250,00 zł
- Kotłownia na paliwo stałe zapytaj o dostępność
- Ogrzewanie podłogowe 350,00 zł
- Kolektory słoneczne 250,00 zł
- Przydomowa oczyszczalnia ścieków 350,00 zł
- Wersja elektroniczna projektu 197,00 zł
- Dodatkowy egzemplarz projektu 249,00 zł