Dane techniczne
- Powierzchnia użytkowa 134.72 m²
- Powierzchnia zabudowy 139.34 m²
- Kubatura 449.62 m³
- Kąt nachylenia dachu 35.00°
- Powierzchnia dachu 190.00 m²
- Wysokość budynku 7.69 m
- Min. wymiary działki 17.84x21.64 m
- Garaż 24.60 m²
- Pracownia Studio Z500
Technologia budowy
Ściany: gazobeton, ceramika, silikaty
Strop: betonowy, gęstożebrowy
Dach: dachówka, blachodachówka, papa
Opis
Z305 to bardzo funkcjonalny projekt domu z poddaszem o nowoczesnej stylizacji i współczesnym detalu. Prostą bryłę budynku zdobią jasne elementy z naturalnego drewna. Dwuspadowy dach w ciemnej kolorystyce dodaje mu elegancji i gustownego charakteru.
Przestrzeń w salonie jest funkcjonalnie rozplanowana. Widoczne jest subtelne oddzielenie od jadalni. Poprzez delikatne wcięcie w salonie, uzyskano miejsce na wygodny taras. Takie rozwiązanie ułatwia umieszczenie domu na małej działce. Kolejną zaletą domu jest kuchnia zaprojektowana w kompozycji otwartej. Zwiększa to znacznie dostępną przestrzeń oraz ułatwia dojście do jadalni. Kuchnia została wyposażona w pomieszczenie pomocnicze na niezbędne kuchenne produkty i sprzęty. Strefa dzienna została wyposażona w małą łazienkę i miejsca na szafy.
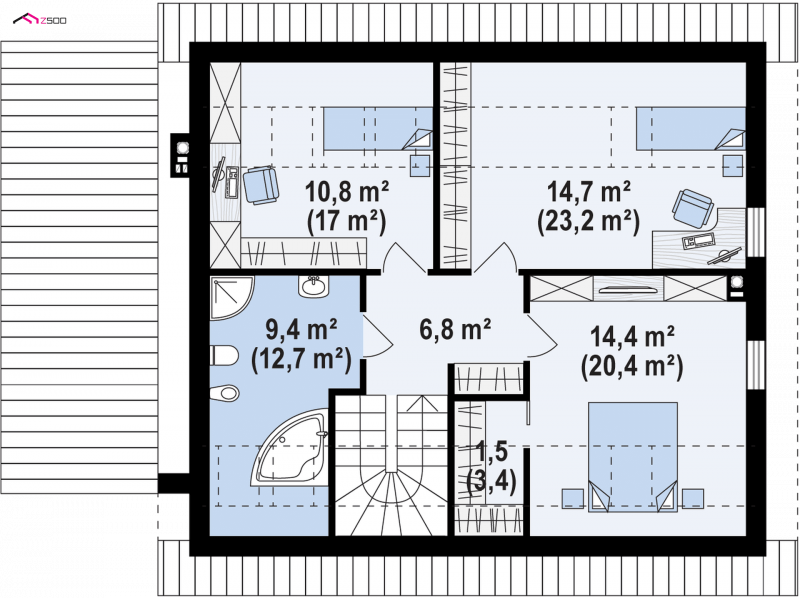
Strefę nocną na piętrze tworzą trzy duże sypialnie z przestronną łazienką. Po kój rodziców posiada własną garderobę.
W projekcie znajduje się także garaż jednostanowiskowy z bezpośrednim przejściem do sieni.
Dbamy o swoich Klientów, jak nikt inny!
Do każdego projektu zakupionego za pośrednictwem serwisu kreoDOM.pl otrzymasz książeczkę z rabatami na zakupy w firmach Komfort, Fachowiec, Domino Łazienki, Komandor, Witek Home i innych. Książeczka na pewno okaże się przydatna podczas urządzania Twojego wymarzonego domu!
Książeczka z rabatami do takich firm jak: Komfort, Domino Łazienki, Fachowiec, Vox, Komandor, Witek Home i innych
Gwarancja
bezpiecznych zakupów
Dodatkowe pakiety projektowe
- Kosztorys inwestorski 249,00zł
- Zestawienie materiałów 57,00 zł
- Wentylacja mechaniczna z rekuperacja 550,00 zł
- Pompa ciepła 250,00 zł
- Kotłownia na paliwo stałe zapytaj o dostępność
- Ogrzewanie podłogowe 350,00 zł
- Kolektory słoneczne 250,00 zł
- Przydomowa oczyszczalnia ścieków 350,00 zł
- Wersja elektroniczna projektu 197,00 zł
- Dodatkowy egzemplarz projektu 249,00 zł