Ściany gazobeton, ceramika, silikaty
Strop betonowy gęstożebrowy
Dach dachówka, blachodachówka
Klasyczny dom z nowoczesnymi elementami o dachu dwuspadowym, pod którym kryje się poddasze użytkowe. Biały tynk elewacji oraz drewniane dodatki rysują prosty, minimalistyczny, uporządkowany styl bryły dedykowanego budynku.
Wejście zadaszono aby śnieg lub deszcz nie przeszkodziły domownikom w poszukiwaniu kluczy do drzwi – szczególnie w otchłani damskich torebek…
Z jednostanowiskowego garażu zaprojektowano przejście do pomieszczenia gospodarczego i do wnętrza domu.
Czterdziestometrowy salon połączono z częścią jadalną i oddzielono je od części kuchennej ścianką działową, którą można zlikwidować tworząc w ten sposób aneks kuchenny i powiększając przestrzeń.
W prawej części parteru znajduje się również dodatkowy pokój z prywatną łazienką. Można go przeznaczyć np. dla osoby starszej lub jako pokój dla gości.
Ubikację umieszczono przy schodach prowadzących na górę.
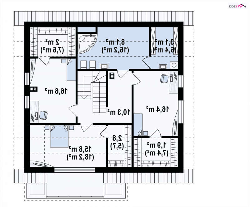
Pietro zaprojektowano zgodnie z zaobserwowanymi potrzebami, które niosą ze sobą nasze czasy – każda sypialnia ma swoją własną garderobę. Największa z nich, przeznaczona dla rodziców, posiada wyjście na balkon. Pokój kąpielowy oddzielono od pralni ścianka działową, aby szum towarzyszący pracy maszyny aby nie zaburzał przyjemnego relaksu w wannie pełnej piany.
Dodatkowym atutem dedykowanego budynku są niskie koszty budowy.