ŚCIANY gazobeton, ceramika, silikaty
DACH dachówka, blachodachówka
Z347 to dom, który posiada salon i kuchnię od frontu. Jego plan rozrysowano jako bryłę na planie prostokąta, z poddaszem użytkowym i dachem dwuspadowym. Proste elementy dekoracyjne służą jednocześnie jako zadaszenie wejścia i tarasu. Elewacja o biało-szarej kolorystyce daje wrażenie czystości, schludności i skromności. Wyżej wymienione atuty architektoniczne są korzystne dla kieszeni inwestora.
Parter składa się z prawej i lewej części domu. Prawa - techniczna oraz garaż jednostanowiskowy i pomieszczenie gospodarcze. Zmieści się również kosiarka i inne potrzebne narzędzia do ogrodu czy samochodu.
Lewa część domu to nasze dzienne centrum dowodzenia. Salon z wydzielona częścią jadalną i bezpośrednim wyjściem na taras stanowią duży pozytyw w wyborze miejsca konsumpcji śniadania. Spiżarkę doceni każda pani domu, natomiast w kuchni możemy zlikwidować ściankę działową przekształcając ją w aneks i powiększając w ten sposób przestrzeń salonową.
Pod schodami prowadzącymi na piętro architekci umieścili łazienkę.
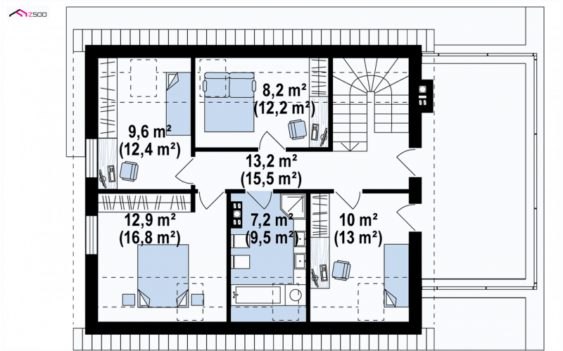
Poddasze użytkowe zawiera 4 sypialnie oraz łazienkę, w której zmieści się prysznic, wanna, bidet i inne potrzebne do codziennej toalety sanitariaty.
Okna dachowe doskonale doświetlą wnętrza pomieszczeń, a w nocy pozwolą docenić piękno jaśniejących na niebie gwiazd.
Nad garażem znajduje się taras z wyjściami prowadzącymi z holu oraz z jednego z pokoi. Pozwoli nam on doświadczyć jeszcze większej swobody, którą cechuje mieszkanie w domku jednorodzinnym.
Projekt Z347 dedykowany jest dla osób pragnących niedużym kosztem zaznać zasadniczej swobody i niezależności.