Dane techniczne
- Powierzchnia użytkowa 75.41 m²
- Powierzchnia zabudowy 62.87 m²
- Kubatura 213.70 m³
- Kąt nachylenia dachu 40.00°
- Powierzchnia dachu 110.38 m²
- Wysokość budynku 7.35 m
- Min. wymiary działki 15.08x16.88 m
- Pracownia Studio Z500
Technologia budowy
Ściany: gazobeton, ceramika, silikaty
Strop:gęstożebrowy, betonowy
Dach: dachówka, blachodachówka
Opis
Projekt z 71 eg jest domem dość oryginalnym w swym wyglądzie, a zarazem zwartym w swojej formie. Dzięki prostej bryle z dwuspadowym dachem, umożliwia to szybką i niedrogą realizację.
Na parterze znajduje się kuchnia z niewielką spiżarnią, jadalnia oraz salon. Wszystkie te pomieszczenia zostały integralnie połączone. Dodatkowo umieszczono pomieszczenie gospodarcze dostępne z zewnątrz oraz łazienkę.
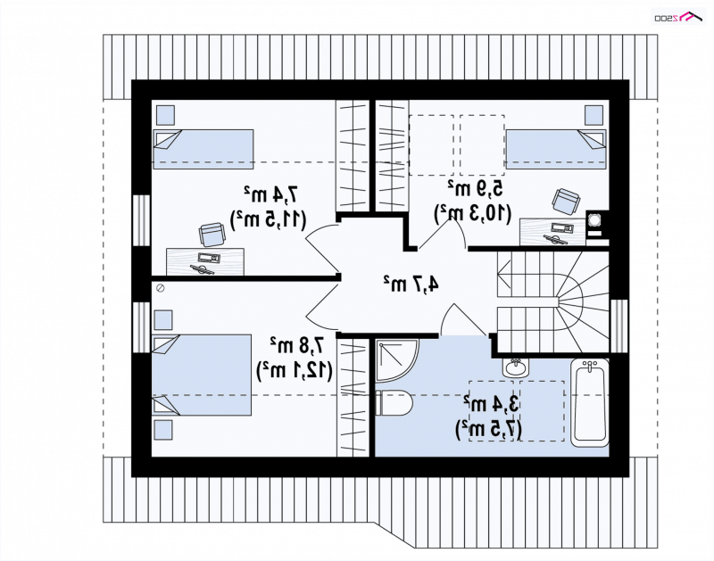
Na piętro prowadzi klatka schodowa. Znajdują się tam trzy pokoje, każdy posiada miejsce na szafę - garderobę i dość przestronna łazienka.
Dbamy o swoich Klientów, jak nikt inny!
Do każdego projektu zakupionego za pośrednictwem serwisu kreoDOM.pl otrzymasz książeczkę z rabatami na zakupy w firmach Komfort, Fachowiec, Domino Łazienki, Komandor, Witek Home i innych. Książeczka na pewno okaże się przydatna podczas urządzania Twojego wymarzonego domu!
Książeczka z rabatami do takich firm jak: Komfort, Domino Łazienki, Fachowiec, Vox, Komandor, Witek Home i innych
Gwarancja
bezpiecznych zakupów
Dodatkowe pakiety projektowe
- Kosztorys inwestorski 249,00zł
- Zestawienie materiałów 57,00 zł
- Wentylacja mechaniczna z rekuperacja 550,00 zł
- Pompa ciepła 250,00 zł
- Kotłownia na paliwo stałe zapytaj o dostępność
- Ogrzewanie podłogowe 350,00 zł
- Kolektory słoneczne 250,00 zł
- Przydomowa oczyszczalnia ścieków 350,00 zł
- Wersja elektroniczna projektu 197,00 zł
- Dodatkowy egzemplarz projektu 249,00 zł