Dane techniczne
- Powierzchnia użytkowa 141.74 m²
- Powierzchnia zabudowy 125.51 m²
- Kubatura 503.20 m³
- Kąt nachylenia dachu 35.00°
- Powierzchnia dachu 136.47 m²
- Wysokość budynku 7.57 m
- Min. wymiary działki 18.48x21.74 m
- Garaż 18.36 m²
- Pracownia Studio Z500
Technologia budowy
Ściany: gazobeton, ceramika, silikaty
Dach: dachówka, blachodachówka, blacha
Strop: betonowy gęstożebrowy Teriva
Opis
Zx38 to dom o zgrabnej formie. Ciekawe zestawienie różnych materiałów na elewacjach oraz rezygnacja z tradycyjnej formy dachu z okapem podkreślają nowoczesny charakter tego projektu. Wysunięty przed bryłę domu garaż z ciekawą formą zadaszenia tworzą atrakcyjną strefę wejściową.
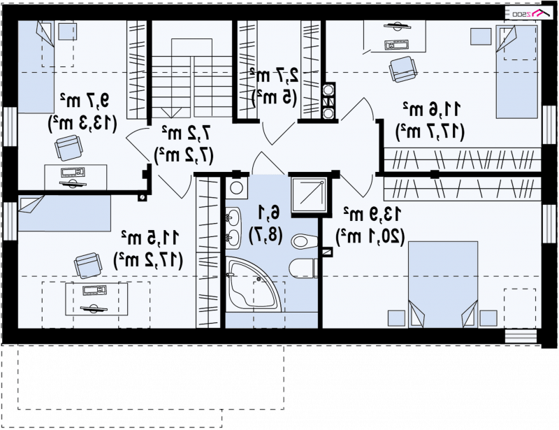
Część dzienna na parterze skupiona jest wokół centralnie umieszczonego kominka. Tworzą ją: salon z jadalnią oraz otwarta kuchnia z długim blatem roboczym oraz spiżarnią. Z holu dostępna jest łazienka z prysznicem, obszerne pomieszczenie gospodarcze oraz dodatkowy pokój. Może on, w zależności od potrzeb, pełnić funkcję sypialni, gabinetu lub pokoju dla gości. Program parteru uzupełnia jednostanowiskowy garaż dostępny z sieni. Na poddaszu mieszczą się 4 wygodne sypialnie oraz duża łazienka i garderoba. W dwóch sypialniach zaprojektowano nowoczesne okna dachowe z pionowym naświetlem.
Zx38 to dom o prostej, zwartej bryle. Dach dwuspadowy oraz jeden komin czynią go energooszczędnym i tanim w budowie.
Dbamy o swoich Klientów, jak nikt inny!
Do każdego projektu zakupionego za pośrednictwem serwisu kreoDOM.pl otrzymasz książeczkę z rabatami na zakupy w firmach Komfort, Fachowiec, Domino Łazienki, Komandor, Witek Home i innych. Książeczka na pewno okaże się przydatna podczas urządzania Twojego wymarzonego domu!
Książeczka z rabatami do takich firm jak: Komfort, Domino Łazienki, Fachowiec, Vox, Komandor, Witek Home i innych
Gwarancja
bezpiecznych zakupów
Dodatkowe pakiety projektowe
- Kosztorys inwestorski 249,00zł
- Zestawienie materiałów 57,00 zł
- Wentylacja mechaniczna z rekuperacja 550,00 zł
- Pompa ciepła 250,00 zł
- Kotłownia na paliwo stałe zapytaj o dostępność
- Ogrzewanie podłogowe 350,00 zł
- Kolektory słoneczne 250,00 zł
- Przydomowa oczyszczalnia ścieków 350,00 zł
- Wersja elektroniczna projektu 197,00 zł
- Dodatkowy egzemplarz projektu 249,00 zł
ustalana telefonicznie
138.13 m²