Dane techniczne
- Powierzchnia użytkowa 1058.70 m²
- Powierzchnia zabudowy 859.10 m²
- Kubatura 5050.00 m³
- Kąt nachylenia dachu 30.00°
- Powierzchnia dachu 1400.00 m²
- Wysokość budynku 9.79 m
- Min. wymiary działki 59.90x38.54 m
- Pracownia MTM Styl
Technologia budowy
Ściany: 3-warstwowe - pustak ceramiczny + styropian, Stropy: żelbetowe, wylewane lub TERIVA, Dach: blachodachówka, kąt nachylenia 30°
Koszty budowy (cena netto bez instalacji):
- fundamenty: 128883.00 zł
- stan-surowy: 1075094.00 zł
- stolarka: 64814.00 zł
- koszt całkowity: 1762879.00 zł
Opis
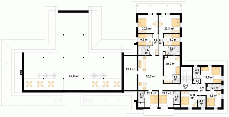
Przestronny pensjonat z użytkowym poddaszem, podpiwniczony. Zaprojektowano 11 pokoi do wynajęcia, w tym: 3 pokoje na parterze przystosowane do potrzeb osób niepełnosprawnych oraz 6 pokoi i 2 apartamenty na poddaszu. Na część rekreacyjną składa się bar oraz sala bankietowa o powierzchni 370 m2 z antresolą i rozległym tarasem.
Dbamy o swoich Klientów, jak nikt inny!
Do każdego projektu zakupionego za pośrednictwem serwisu kreoDOM.pl otrzymasz książeczkę z rabatami na zakupy w firmach Komfort, Fachowiec, Domino Łazienki, Komandor, Witek Home i innych. Książeczka na pewno okaże się przydatna podczas urządzania Twojego wymarzonego domu!
Książeczka z rabatami do takich firm jak: Komfort, Domino Łazienki, Fachowiec, Vox, Komandor, Witek Home i innych
Gwarancja
bezpiecznych zakupów
Dodatkowe pakiety projektowe
- Kosztorys inwestorski 2200.00
- Wentylacja mechaniczna z rekuperacją 750