Budynek wykonany w technologii tradycyjnej. Ściany warstwowe grubości 36cm, murowane z bloczków z betonu komórkowego grubości 24cm, ocieplone styropianem grubości 12cm. Ściany wewnętrzne z bloczków z betonu komórkowego grubości 24cm i 12cm. Bramy o wymiarach 3,25x3,50m. Komin z cegły ceramicznej pełnej. Strop gęstożebrowy „TERIVA 4,0”. Więźba dachowa dwuspadowa, stalowa, pokryta płytą warstwową.
PROJEKT:
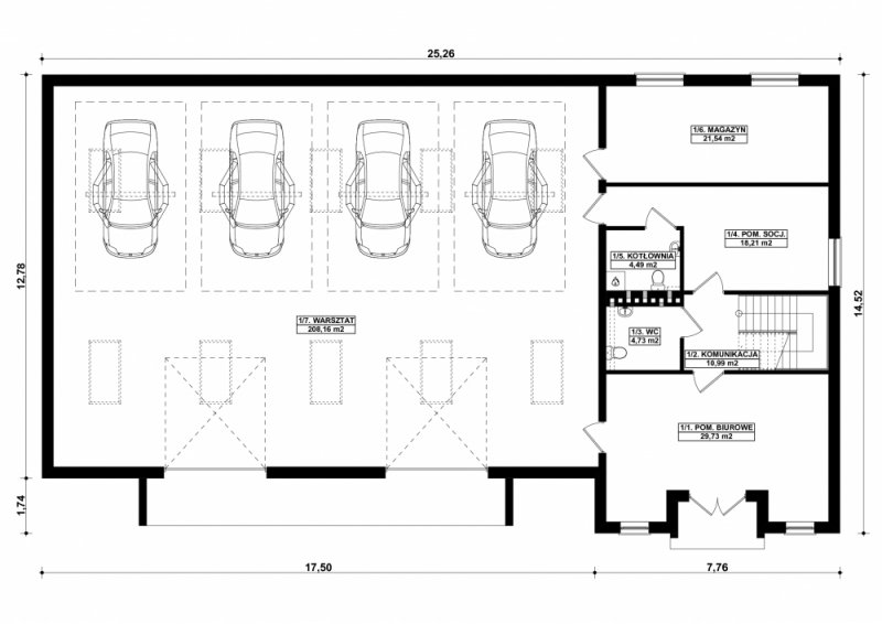
Projekt warsztatu samochodowego, parterowego, niepodpiwniczonego z poddaszem użytkowym, przeznaczonego dla samochodów dostawczych i osobowych z trzema pomieszczeniami biurowymi, socjalnym, dwoma łazienkami, magazynem i kotłownią. Do projektu dołączone jest zestawienie: stali, więźby dachowej oraz stolarki drzwiowej, jak równieżbezpłatna zgoda na dokonanie zmian.