Dane techniczne
- Powierzchnia użytkowa 348.64 m²
- Powierzchnia zabudowy 401.70 m²
- Kubatura 2360.20 m³
- Kąt nachylenia dachu 3.00°
- Wysokość budynku 6.05 m
- Pracownia Kup projekt
Technologia budowy
Budynek wykonany w technologii tradycyjnej. Ściany warstwowe grubości 36cm, murowane z bloczków z betonu komórkowego grubości 24cm, ocieplone styropianem grubości 12cm. Ściany wewnętrzne z bloczków z betonu komórkowego grubości 12cm. Bramy o wymiarach 3,25x3,50m i 3,70x3,70m. Więźba dachowa dwuspadowa, stalowa, pokryta płytą warstwową.
Opis
PROJEKT:
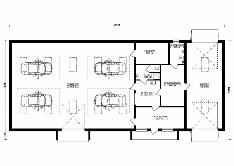
Projekt warsztatu samochodowego, parterowego, niepodpiwniczonego, przeznaczonego dla samochodów dostawczych i osobowych z myjnią, pomieszczeniem biurowym, socjalnym, łazienką, magazynem i maszynownią. Do projektu dołączone jest zestawienie: stali, więźby dachowej oraz stolarki drzwiowej, jak równieżbezpłatna zgoda na dokonanie zmian.
Dbamy o swoich Klientów, jak nikt inny!
Do każdego projektu zakupionego za pośrednictwem serwisu kreoDOM.pl otrzymasz książeczkę z rabatami na zakupy w firmach Komfort, Fachowiec, Domino Łazienki, Komandor, Witek Home i innych. Książeczka na pewno okaże się przydatna podczas urządzania Twojego wymarzonego domu!
Książeczka z rabatami do takich firm jak: Komfort, Domino Łazienki, Fachowiec, Vox, Komandor, Witek Home i innych
Gwarancja
bezpiecznych zakupów
Dodatkowe pakiety projektowe