Dane techniczne
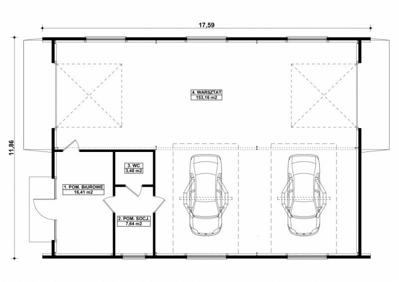
- Powierzchnia użytkowa 180.61 m²
- Powierzchnia zabudowy 208.63 m²
- Kubatura 942.30 m³
- Kąt nachylenia dachu 10.00°
- Wysokość budynku 5.38 m
- Pracownia Kup projekt
Technologia budowy
Budynek konstrukcji stalowej. Ściany z płyty warstwowej. Bramy o wymiarach 3,50x3,50m. Więźba dachowa dwuspadowa, stalowa, pokryta płytą warstwową.
Opis
PROJEKT:
Projekt warsztatu samochodowego, parterowego, niepodpiwniczonego, przeznaczonego dla samochodów dostawczych i osobowych z pomieszczeniem biurowym, socjalnym i łazienką. Do projektu dołączone jest zestawienie: stali, stolarki drzwiowej i okiennej, jak równieżbezpłatna zgoda na dokonanie zmian.
Dbamy o swoich Klientów, jak nikt inny!
Do każdego projektu zakupionego za pośrednictwem serwisu kreoDOM.pl otrzymasz książeczkę z rabatami na zakupy w firmach Komfort, Fachowiec, Domino Łazienki, Komandor, Witek Home i innych. Książeczka na pewno okaże się przydatna podczas urządzania Twojego wymarzonego domu!
Książeczka z rabatami do takich firm jak: Komfort, Domino Łazienki, Fachowiec, Vox, Komandor, Witek Home i innych
Gwarancja
bezpiecznych zakupów
Dodatkowe pakiety projektowe