Technologia tradycyjna :
- powierzchnia użytkowa - 74,39m2
- powierzchnia zabudowy - 86,45m2
- powierzchnia całoroczna - 86,45m2
- kubatura - 381,54m3
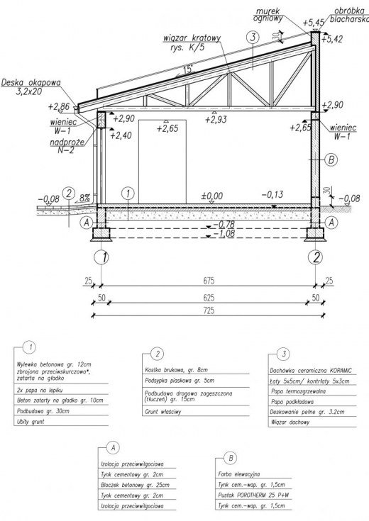
- ściany zewnętrzne nośne murowane grubości 25cm
- ściany wewnętrzne działowe grubości 12cm
- wszystkie ściany wykonane z pustaków ceramicznych "POROTHERM"
- wysokość budynku - 5,53m
- dach jednospadowy 15°
- konstrukcja więźby dachowej - drewniana kratownica
- pokrycie dachówka ceramiczna
- wymiary bram garażowych 5000x2400 i 2400x2400
Garaż trzystanowiskowy z pomieszczeniem gospodarczym.
Wymiary bram garażowych 5000x2400 i 2400x2400.
Projekt składa się z części architektonicznej, konstrukcyjnej i wewnętrznej instalacji elektrycznej. W projekcie załączone są podstawowe zestawienie stali, drewna i stolarki okienno-drzwiowej. Do projektu dołączamy bezpłatną zgodę na wprowadzenie zmian, oświadczenie projektantów o wykonaniu projektu zgodnie z obowiązującymi normami i przepisami oraz kserokopie uprawnień projektantów wraz z aktualnym wpisem do izby. W przypadku zamówienia projektu w technologii lekkiej, drewnianej konstrukcji szkieletowej, powierzchnia użytkowa budynku jest o około 7% większa.