Technologia tradycyjna :
- powierzchnia użytkowa - 45,00m
- powierzchnia zabudowy - 52,00m2
- powierzchnia całkowita - 52,00m2
- kubatura - 216,00m3
- ściany zewnętrzne nośne murowane grubości 25cm
- wszystkie ściany wykonane z pustaków ceramicznych "POROTHERM"
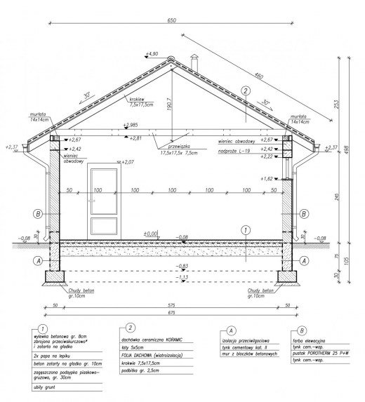
- wysokość budynku 4,90m
- dach dwuspadowy 30°
- więźba dachowa drewniana o konstrukcji krokwiowej z belką stropową
- pokrycie dachówka ceramiczna
- wymiar bramy garażowej 5000x24300
Projekt garażu dwustanowiskowego, wolnostojącego, parterowego.
Brama garażowa o wymiarach 5000x2300.
Projekt składa się z części architektonicznej, konstrukcyjnej i wewnętrznej instalacji elektrycznej. W projekcie załączone są podstawowe zestawienie stali, drewna i stolarki okienno-drzwiowej. Do projektu dołączamy bezpłatną zgodę na wprowadzenie zmian, oświadczenie projektantów o wykonaniu projektu zgodnie z obowiązującymi normami i przepisami oraz kserokopie uprawnień projektantów wraz z aktualnym wpisem do izby. W przypadku zamówienia projektu w technologii lekkiej, drewnianej konstrukcji szkieletowej, powierzchnia użytkowa budynku jest o około 7% większa.