Dane techniczne
- Powierzchnia użytkowa 163.88 m²
- Powierzchnia zabudowy 180.00 m²
- Kubatura 1170.00 m³
- Kąt nachylenia dachu 30.00°
- Powierzchnia dachu 243.00 m²
- Wysokość budynku 7.36 m
- Min. wymiary działki 24.00x17.00 m
- Garaż 102.13 m²
- Pracownia Pro Arte
Technologia budowy
Technologia tradycyjna :
- ściany zewnętrzne murowane grubości 25 cm
- wszystkie ściany wykonane z pustaków ceramicznych "POROTHERM".
- konstrukcja więźby dachowej drewniana, pokrycie dachówka ceramiczna.
Technologia szkieletu drewnianego :
- ściany zewnętrzne : słupki 4x15 rozstawione max. co 40cm obite zewnątrz płytą OSB 3 1,2cm, a wewnątrz płytą GKF 1,25cm, przestrzeń pomiędzy słupkami wypełniona wełną mineralną 15cm.
- konstrukcja więźby dachowej drewniana, pokrycie dachówka ceramiczna.
- docieplenie warstwą styropianu gr. 5 cm.
Opis
Garaż jednostanowiskowy z pomieszczeniem gospodarczym.
Brama garażowa o wymiarach 4,0x3,5m.
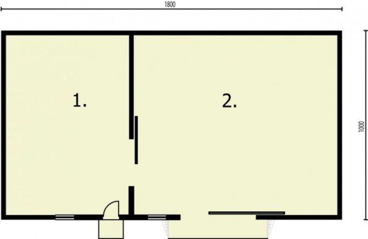
Rzuty
RZUT PRZYZIEMIA
- Pom. Gospodarcze 61.75 m2
- Garaż 102.13 m2
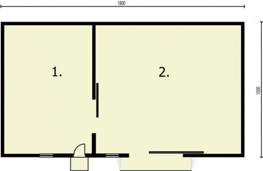
Rzuty
RZUT PRZYZIEMIA
- Pom. Gospodarcze 61.75 m2
- Garaż 102.13 m2
Dbamy o swoich Klientów, jak nikt inny!
Do każdego projektu zakupionego za pośrednictwem serwisu kreoDOM.pl otrzymasz książeczkę z rabatami na zakupy w firmach Komfort, Fachowiec, Domino Łazienki, Komandor, Witek Home i innych. Książeczka na pewno okaże się przydatna podczas urządzania Twojego wymarzonego domu!
Książeczka z rabatami do takich firm jak: Komfort, Domino Łazienki, Fachowiec, Vox, Komandor, Witek Home i innych
Gwarancja
bezpiecznych zakupów
Dodatkowe pakiety projektowe
- Kosztorys inwestorski Zapytaj o dostępność