Dane techniczne
- Powierzchnia użytkowa 163.88 m²
- Powierzchnia zabudowy 180.00 m²
- Kubatura 916.00 m³
- Kąt nachylenia dachu 3.00°
- Powierzchnia dachu 180.00 m²
- Wysokość budynku 5.64 m
- Min. wymiary działki 24.00x17.00 m
- Garaż 102.10 m²
- Pracownia Pro Arte
Technologia budowy
Technologia tradycyjna , ściany murowane grubości 25 cm. Konstrukcja więźby dachowej drewniana, pokrycie dachówka ceramiczna.
Opis
Garaż z pomieszczeniem gospodarczym.
Brama garażowa o wymiarach 4,0x3,5m.
Projekt garażu składa się z czterech egzemplarzy a w tym części architektonicznej, konstrukcyjnej i instalacji wewnętrznej elektrycznej. W projekcie załączone są podstawowe zestawienie stali, drewna i stolarki okienno-drzwiowej.
Do projektu dołączamy bezpłatną zgodę na wprowadzenie zmian, oświadczenie projektantów o wykonaniu projektu zgodnie z obowiązującymi normami i przepisami oraz kserokopie uprawnień projektantów wraz z aktualnym wpisem do izby.
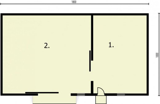
Rzuty
RZUT PRZYZIEMIA
- Pom. Gospodarcze 61.75 m2
- Garaż 102.13 m2
Rzuty
RZUT PRZYZIEMIA
- Pom. Gospodarcze 61.75 m2
- Garaż 102.13 m2
Dbamy o swoich Klientów, jak nikt inny!
Do każdego projektu zakupionego za pośrednictwem serwisu kreoDOM.pl otrzymasz książeczkę z rabatami na zakupy w firmach Komfort, Fachowiec, Domino Łazienki, Komandor, Witek Home i innych. Książeczka na pewno okaże się przydatna podczas urządzania Twojego wymarzonego domu!
Książeczka z rabatami do takich firm jak: Komfort, Domino Łazienki, Fachowiec, Vox, Komandor, Witek Home i innych
Gwarancja
bezpiecznych zakupów
Dodatkowe pakiety projektowe
- Kosztorys inwestorski Zapytaj o dostępność