Dane techniczne
- Powierzchnia użytkowa 623.28 m²
- Powierzchnia zabudowy 526.80 m²
- Kubatura 3686.05 m³
- Kąt nachylenia dachu 15.00°
- Powierzchnia dachu 581.00 m²
- Wysokość budynku 8.31 m
- Min. wymiary działki 43.12x23.00 m
- Garaż 360.62 m²
- Pracownia Pro Arte
Technologia budowy
Technologia tradycyjna :
- ściany zewnętrzne murowane grubości 25 cm
- wszystkie ściany wykonane z pustaków ceramicznych
"POROTHERM".
- konstrukcja więźby dachowej drewniana, pokrycie dachówka
ceramiczna.
Opis
Projekt garażu składa się z czterech egzemplarzy a w tym części architektonicznej, konstrukcyjnej i instalacji wewnętrznej elektrycznej. W projekcie załączone są podstawowe zestawienie stali, drewna i stolarki okienno-drzwiowej. Do projektu dołączone są: bezpłatna zgoda na wprowadzenie zmian, oświadczenie projektantów o wykonaniu projektu zgodnie z obowiązującymi normami i przepisami oraz kserokopie uprawnień projektantów wraz z aktualnym wpisem do izby.
Rzuty
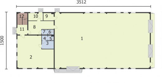
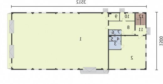
RZUT PRZYZIEMIA
- Pom. gosp. 5.32 m2
- Pom. gosp. 6.51 m2
- Garaż 360.62 m2
- Pom. gosp. 69.88 m2
- Pom. gosp. 1.94 m2
- Wc 1.94 m2
- Wc 1.94 m2
- Pom. gosp. 1.94 m2
- Pom. gosp. 19.17 m2
- Pom. gosp. 7.55 m2
- Pom. gosp. 14.72 m2
RZUT PODDASZA
- Balkon 13.05 m2
- Pom. gosp. 7.29 m2
- Pom. gosp. 22.51 m2
- Korytarz 16.49 m2
- Pom. gosp. 24.63 m2
- Pom. gosp. 26.38 m2
- Pom. gosp. 19.56 m2
- Pom. gosp. 2.96 m2
- Wc 1.64 m2
- Wc 1.64 m2
Rzuty
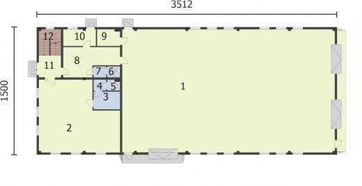
RZUT PRZYZIEMIA
- Pom. gosp. 5.32 m2
- Pom. gosp. 6.51 m2
- Garaż 360.62 m2
- Pom. gosp. 69.88 m2
- Pom. gosp. 1.94 m2
- Wc 1.94 m2
- Wc 1.94 m2
- Pom. gosp. 1.94 m2
- Pom. gosp. 19.17 m2
- Pom. gosp. 7.55 m2
- Pom. gosp. 14.72 m2
RZUT PODDASZA
- Balkon 13.05 m2
- Pom. gosp. 7.29 m2
- Pom. gosp. 22.51 m2
- Korytarz 16.49 m2
- Pom. gosp. 24.63 m2
- Pom. gosp. 26.38 m2
- Pom. gosp. 19.56 m2
- Pom. gosp. 2.96 m2
- Wc 1.64 m2
- Wc 1.64 m2
Dbamy o swoich Klientów, jak nikt inny!
Do każdego projektu zakupionego za pośrednictwem serwisu kreoDOM.pl otrzymasz książeczkę z rabatami na zakupy w firmach Komfort, Fachowiec, Domino Łazienki, Komandor, Witek Home i innych. Książeczka na pewno okaże się przydatna podczas urządzania Twojego wymarzonego domu!
Książeczka z rabatami do takich firm jak: Komfort, Domino Łazienki, Fachowiec, Vox, Komandor, Witek Home i innych
Gwarancja
bezpiecznych zakupów
Dodatkowe pakiety projektowe
- Kosztorys inwestorski Zapytaj o dostępność