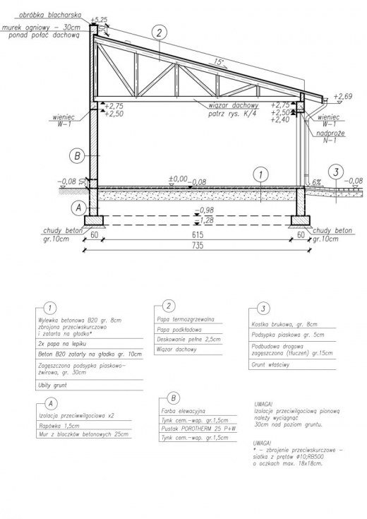
Technologia tradycyjna :
- ściany zewnętrzne nośne murowane grubości 25cm
- ściany wewnętrzne działowe grubości 12cm
- wszystkie ściany wykonane z pustaków ceramicznych "POROTHERM"
- więźba dachowa drewniana o konstrukcji wiązarów kratowych
- pokrycie dachu - papa na deskowaniu pełnym
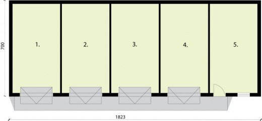
- wymiar bram garażowych 4x 2400x2400
Budynek garażowy 4-stanowiskowy z pomieszczeniem gospodarczym , wolnostojący , parterowy , niepodpiwniczony.
Wymiar bram garażowych 4x 2400x2400
Projekt składa się z części architektonicznej, konstrukcyjnej i wewnętrznej instalacji elektrycznej. W projekcie załączone są podstawowe zestawienie stali, drewna i stolarki okienno-drzwiowej. Do projektu dołączone sa: bezpłatna zgoda na wprowadzenie zmian, oświadczenie projektantów o wykonaniu projektu zgodnie z obowiązującymi normami i przepisami oraz kserokopie uprawnień projektantów wraz z aktualnym wpisem do izby. W przypadku zamówienia projektu w technologii lekkiej, drewnianej konstrukcji szkieletowej, powierzchnia użytkowa budynku jest o około 7% większa.