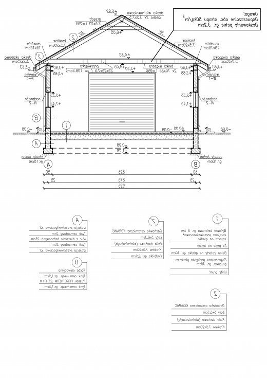
Technologia tradycyjna :
- ściany zewnętrzne murowane grubości 25 cm
- wszystkie ściany wykonane z pustaków ceramicznych "POROTHERM".
- konstrukcja więźby dachowej drewniana o konstrukcji krokwiowo-jętkowej z dolnymi belkami wiązara, pokrycie dachówka ceramiczna.
Budynek garażowy jednostanowiskowy z pomieszczeniem gospodarczym. Wymiary bramy 4mx3,5m Projekt składa się z części architektonicznej, konstrukcyjnej i wewnętrznej instalacji elektrycznej. W projekcie załączone są podstawowe zestawienie stali, drewna i stolarki okienno-drzwiowej. Do projektu dołączone są: bezpłatna zgoda na wprowadzenie zmian, oświadczenie projektantów o wykonaniu projektu zgodnie z obowiązującymi normami i przepisami oraz kserokopie uprawnień projektantów wraz z aktualnym wpisem do izby. W przypadku zamówienia projektu w technologii lekkiej, drewnianej konstrukcji szkieletowej, powierzchnia użytkowa budynku jest o około 7% większa.