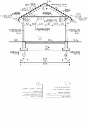
Technologia drewniana : - główną konstrukcję nośną stanowią stopy fundamentowe żelbetowe zazbrojone konstrukcyjnie - słupy drewniane - dach dwuspadowy, oparty na więźbie o konstrukcji krokwiowo – jętkowej z dolnymi belkami wiązara - pokrycie dachówka ceramiczna ( w trakcie adaptacji możliwość zmiany na blachodówkę)
Wiata garażowa czterostanowiskowa , wolnostojąca, może pełnić funkcję magazynową. Projekt składa się z części architektonicznej, konstrukcyjnej i wewnętrznej instalacji elektrycznej. W projekcie załączone są podstawowe zestawienie stali, drewna i stolarki okienno-drzwiowej. Do projektu dołączone są: bezpłatna zgoda na wprowadzenie zmian, oświadczenie projektantów o wykonaniu projektu zgodnie z obowiązującymi normami i przepisami oraz kserokopie uprawnień projektantów wraz z aktualnym wpisem do izby. W przypadku zamówienia projektu w technologii lekkiej, drewnianej konstrukcji szkieletowej, powierzchnia użytkowa budynku jest o około 7% większa.