Technologia tradycyjna :
- powierzchnia zabudowy budynky -31,97m2
- powierzchnia wiaty nie wchodząca do powierzchni zabudowy -21,75m2
- powierzchnia użytkowa części zamkniętych -24,58m2
- powierzchnia użytkowa części otwartych -21,75m2
- powierzchnia całkowita części zamkniętych -31,97m2
- powierzchnia całkowita części otwartych -21,75m2
- powierzchnia całkowita razem -53,72m2
- kubatura brutto:
- części zamkniętych i przekrytych ze szystkich stron -118,67m3
- części niezamkniętych, przekrytych -93,27m3
-kubatura brutto razem -211,94m3
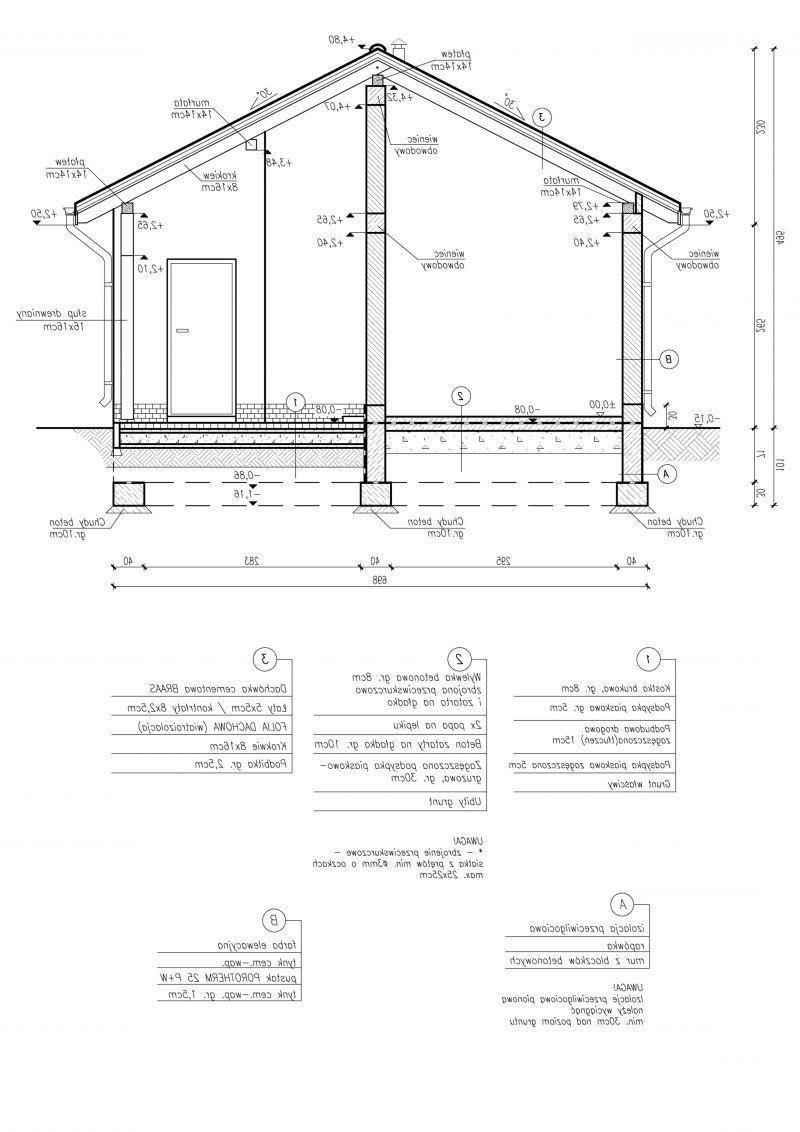
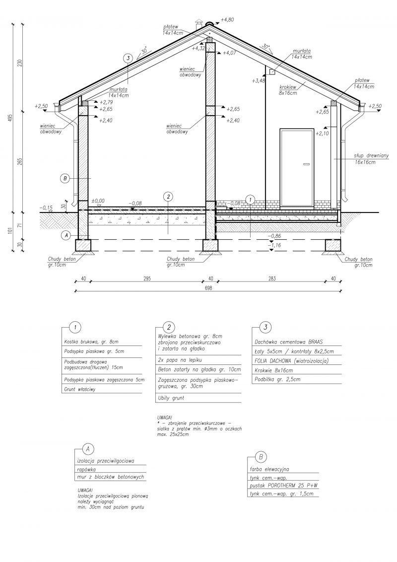
- ściany zewnętrzne nośne murowane grubości 25cm
- wszystkie ściany wykonane pustaków ceramicznych "POROTHERM"
- wysokość budynku 4,95m
- dach dwuspadowy 30°
- więźba dachowa drewniana
- pokrycie dachu dachówka cementowa bądź ceramiczna
- wymiar bramy garażowej 2,4x2,4m
Stal: 437.66 m2
Budynek gospodarczy, wolnostojący. Projekt składa się z części architektonicznej, konstrukcyjnej i wewnętrznej instalacji elektrycznej. W projekcie załączone są podstawowe zestawienie stali, drewna i stolarki okienno-drzwiowej. Do projektu dołączamy bezpłatną zgodę na wprowadzenie zmian, oświadczenie projektantów o wykonaniu projektu zgodnie z obowiązującymi normami i przepisami oraz kserokopie uprawnień projektantów wraz z aktualnym wpisem do izby. W przypadku zamówienia projektu w technologii lekkiej, drewnianej konstrukcji szkieletowej, powierzchnia użytkowa budynku jest o około 7% większa.