Dane techniczne
- Powierzchnia użytkowa 35.20 m²
- Powierzchnia zabudowy 36.40 m²
- Kubatura 86.38 m³
- Kąt nachylenia dachu 1.00°
- Wysokość budynku 2.44 m
- Min. wymiary działki 12.21x12.86 m
- Garaż 35.20 m²
- Pracownia Pro Arte
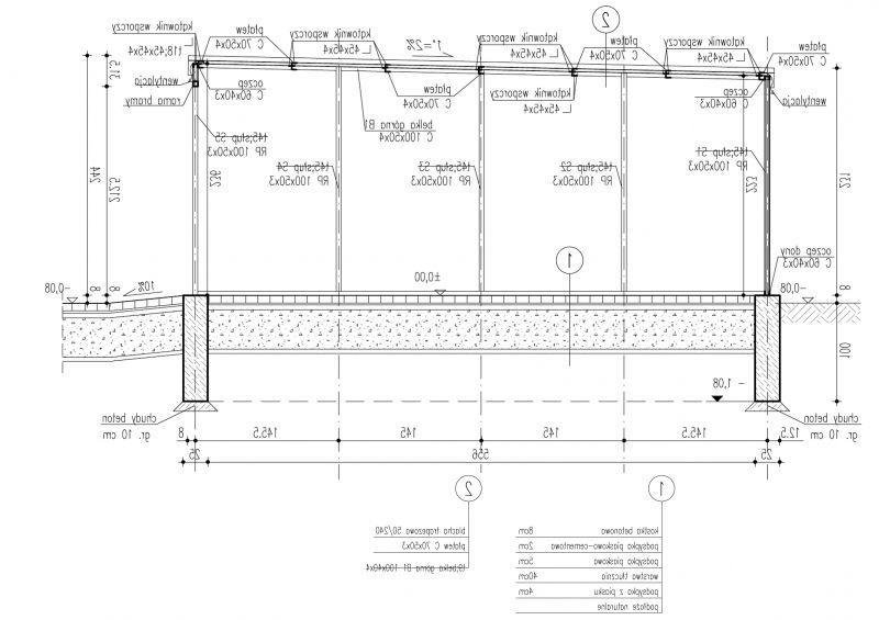
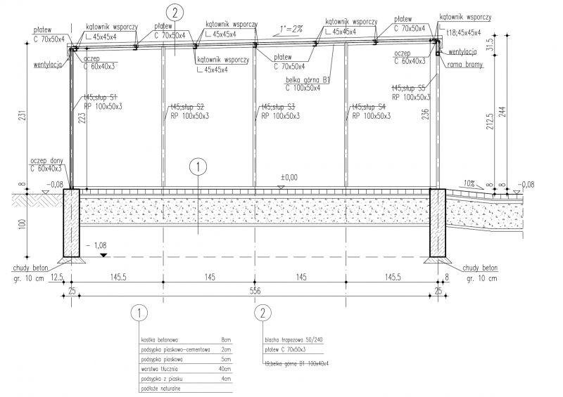
Technologia budowy
-budynek zaprojektowano w technologii szkieletu stalowego
- pokrycie dachu z blachy trapezowej
Opis
Budynek gospodarczy, wolnostojący. Projekt składa się z części architektonicznej, konstrukcyjnej i wewnętrznej instalacji elektrycznej. W projekcie załączone są podstawowe zestawienie stali, drewna i stolarki okienno-drzwiowej. Do projektu dołączamy bezpłatną zgodę na wprowadzenie zmian, oświadczenie projektantów o wykonaniu projektu zgodnie z obowiązującymi normami i przepisami oraz kserokopie uprawnień projektantów wraz z aktualnym wpisem do izby. W przypadku zamówienia projektu w technologii lekkiej, drewnianej konstrukcji szkieletowej, powierzchnia użytkowa budynku jest o około 7% większa.
Rzuty
RZUT PRZYZIEMIA
- Garaż 35.2 m2
Rzuty
RZUT PRZYZIEMIA
- Garaż 35.2 m2
Dbamy o swoich Klientów, jak nikt inny!
Do każdego projektu zakupionego za pośrednictwem serwisu kreoDOM.pl otrzymasz książeczkę z rabatami na zakupy w firmach Komfort, Fachowiec, Domino Łazienki, Komandor, Witek Home i innych. Książeczka na pewno okaże się przydatna podczas urządzania Twojego wymarzonego domu!
Książeczka z rabatami do takich firm jak: Komfort, Domino Łazienki, Fachowiec, Vox, Komandor, Witek Home i innych
Gwarancja
bezpiecznych zakupów
Dodatkowe pakiety projektowe
- Kosztorys inwestorski Zapytaj o dostępność