Dane techniczne
- Powierzchnia użytkowa 18.36 m²
- Powierzchnia zabudowy 19.25 m²
- Kubatura 45.70 m³
- Kąt nachylenia dachu 1.00°
- Powierzchnia dachu 19.83 m²
- Wysokość budynku 2.44 m
- Min. wymiary działki 9.50x12.50 m
- Garaż 18.36 m²
- Pracownia Pro Arte
Technologia budowy
Dostępna wersja garażu blaszanego otynkowanego
- budynek zaprojektowano w technologii szkieletu stalowego
- pokrycie dachu z blachy trapezowej
- wypełnienie ścian z paneli ściennych
- główną konstrukcję nośną stanowią stopy betonowe oraz stalowy szkielet.
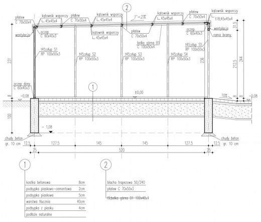
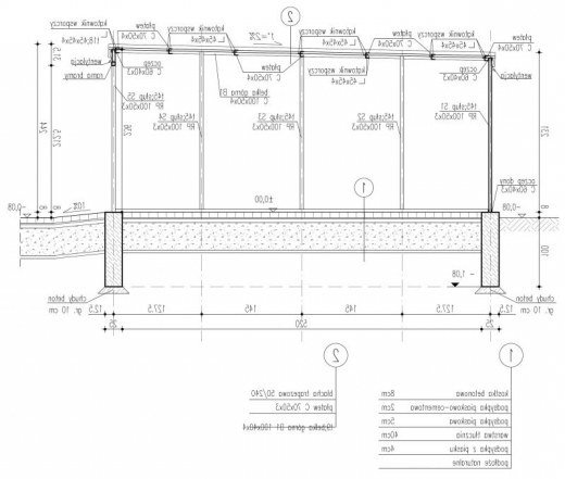
Opis
Budynek garażowy blaszany , wolnostojący , 1 stanowiskowy. Wymiary budynku : 5,50x3,50 Wymiary bram garażowych : 2,50 x 2,125 Kąt dachu : 1° Pow. dachu : 19,83m2 Projekt składa się z części architektonicznej, konstrukcyjnej i wewnętrznej instalacji elektrycznej. Do projektu dołączone są: bezpłatna zgoda na wprowadzenie zmian, oświadczenie projektantów o wykonaniu projektu zgodnie z obowiązującymi normami i przepisami oraz kserokopie uprawnień projektantów wraz z aktualnym wpisem do izby.
Rzuty
RZUT PRZYZIEMIA
- Garaż 18.36 m2
Rzuty
RZUT PRZYZIEMIA
- Garaż 18.36 m2
Dbamy o swoich Klientów, jak nikt inny!
Do każdego projektu zakupionego za pośrednictwem serwisu kreoDOM.pl otrzymasz książeczkę z rabatami na zakupy w firmach Komfort, Fachowiec, Domino Łazienki, Komandor, Witek Home i innych. Książeczka na pewno okaże się przydatna podczas urządzania Twojego wymarzonego domu!
Książeczka z rabatami do takich firm jak: Komfort, Domino Łazienki, Fachowiec, Vox, Komandor, Witek Home i innych
Gwarancja
bezpiecznych zakupów
Dodatkowe pakiety projektowe
- Kosztorys inwestorski Zapytaj o dostępność