Dane techniczne
- Powierzchnia użytkowa 33.13 m²
- Powierzchnia zabudowy 34.00 m²
- Kubatura 80.60 m³
- Kąt nachylenia dachu 1.00°
- Powierzchnia dachu 37.77 m²
- Wysokość budynku 2.44 m
- Min. wymiary działki 11.80x12.86 m
- Garaż 16.13 m²
- Pracownia Pro Arte
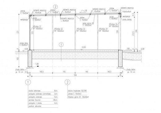
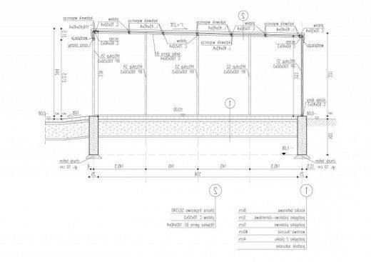
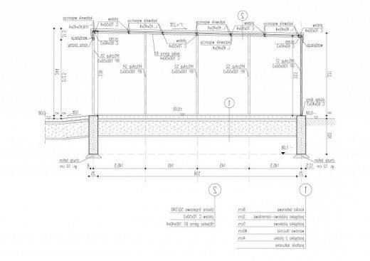
Technologia budowy
Wersja garażu blaszanego otynkowanego:
![]()
- budynek zaprojektowano w technologii szkieletu stalowego
- pokrycie dachu z blachy trapezowej
- wypełnienie ścian z paneli ściennych
- główną konstrukcję nośną stanowią stopy betonowe oraz stalowy szkielet.
Opis
Budynek garażowy blaszany , wolnostojący , 1 stanowiskowy z wiatą garożową. Wymiary budynku : 5,80x5,86 Wymiary bram garażowych : 2,50 x 2,125 Kąt dachu : 1° Pow. dachu : 37,77m2 Projekt składa się z części architektonicznej, konstrukcyjnej i wewnętrznej instalacji elektrycznej. Do projektu dołączone są: bezpłatna zgoda na wprowadzenie zmian, oświadczenie projektantów o wykonaniu projektu zgodnie z obowiązującymi normami i przepisami oraz kserokopie uprawnień projektantów wraz z aktualnym wpisem do izby.
Rzuty
RZUT PRZYZIEMIA
- Garaż 16.13 m2
- Wiata 17 m2
Rzuty
RZUT PRZYZIEMIA
- Garaż 16.13 m2
- Wiata 17 m2
Dbamy o swoich Klientów, jak nikt inny!
Do każdego projektu zakupionego za pośrednictwem serwisu kreoDOM.pl otrzymasz książeczkę z rabatami na zakupy w firmach Komfort, Fachowiec, Domino Łazienki, Komandor, Witek Home i innych. Książeczka na pewno okaże się przydatna podczas urządzania Twojego wymarzonego domu!
Książeczka z rabatami do takich firm jak: Komfort, Domino Łazienki, Fachowiec, Vox, Komandor, Witek Home i innych
Gwarancja
bezpiecznych zakupów
Dodatkowe pakiety projektowe
- Kosztorys inwestorski Zapytaj o dostępność