Dane techniczne
- Powierzchnia użytkowa 28.30 m²
- Powierzchnia zabudowy 29.16 m²
- Kubatura 77.00 m³
- Kąt nachylenia dachu 1.00°
- Wysokość budynku 2.97 m
- Min. wymiary działki 11.40x12.40 m
- Garaż 28.30 m²
- Pracownia Pro Arte
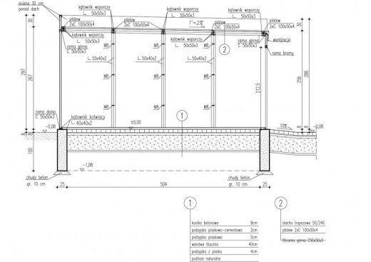
Technologia budowy
- budynek zaprojektowano w technologii szkieletu stalowego
- pokrycie dachu z blachy trapezowej
- wypełnienie ścian z paneli ściennych
- główną konstrukcję nośną stanowią stopy betonowe oraz stalowy szkielet.
Opis
Budynek garażowy blaszany, wolnostojący, 2 stanowiskowy.
Wymiary budynku : 5,4x5,4 Wymiary bram garażowych : 4,75x 2,125 Projekt składa się z części architektonicznej, konstrukcyjnej i wewnętrznej instalacji elektrycznej. Do projektu dołączamy bezpłatną zgodę na wprowadzenie zmian, oświadczenie projektantów o wykonaniu projektu zgodnie z obowiązującymi normami i przepisami oraz kserokopie uprawnień projektantów wraz z aktualnym wpisem do izby.
Rzuty
RZUT PRZYZIEMIA
- Garaż 28.3 m2
Rzuty
RZUT PRZYZIEMIA
- Garaż 28.3 m2
Dbamy o swoich Klientów, jak nikt inny!
Do każdego projektu zakupionego za pośrednictwem serwisu kreoDOM.pl otrzymasz książeczkę z rabatami na zakupy w firmach Komfort, Fachowiec, Domino Łazienki, Komandor, Witek Home i innych. Książeczka na pewno okaże się przydatna podczas urządzania Twojego wymarzonego domu!
Książeczka z rabatami do takich firm jak: Komfort, Domino Łazienki, Fachowiec, Vox, Komandor, Witek Home i innych
Gwarancja
bezpiecznych zakupów
Dodatkowe pakiety projektowe
- Kosztorys inwestorski Zapytaj o dostępność