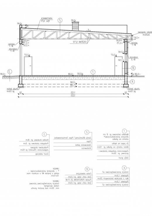
Technologia tradycyjna :
- ściany zewnętrzne murowane grubości 25 cm
- wszystkie ściany wykonane z pustaków ceramicznych "POROTHERM".
- konstrukcja więźby dachowej drewniana, pokrycie deski i papa
Technologia szkieletu drewnianego :
- ściany zewnętrzne: słupki 4x15 rozstawione max. co 40cm obite zewnątrz płytą OSB 3 1,2cm, a wewnątrz płytą GKF 1,25cm, przestrzeń pomiędzy słupkami wypełniona wełną mineralną 15cm.
- konstrukcja więźby dachowej drewniana, pokrycie deski i papa
- docieplenie warstwą styropianu gr. 5 cm.
- źródłem ciepła jest kocioł na węgiel w kotłowni wewnętrznej
Garaż z pomieszczeniem garażowo-magazynowym. Wymiary bramy garażowej 4400x3500 Projekt składa się z części architektonicznej, konstrukcyjnej, wewnętrznych instalacji wod.-kan, c. o. i elektrycznej. W projekcie załączone są podstawowe zestawienie stali, drewna i stolarki okienno-drzwiowej. Do projektu dołączamy bezpłatną zgodę na wprowadzenie zmian, oświadczenie projektantów o wykonaniu projektu zgodnie z obowiązującymi normami i przepisami oraz kserokopie uprawnień projektantów wraz z aktualnym wpisem do izby. W przypadku zamówienia projektu w technologii lekkiej, drewnianej konstrukcji szkieletowej, powierzchnia użytkowa budynku jest o około 7% większa.