Dane techniczne
- Powierzchnia użytkowa 296.86 m²
- Powierzchnia zabudowy 342.00 m²
- Kubatura 1642.00 m³
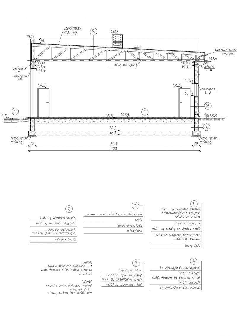
- Kąt nachylenia dachu 3.00°
- Powierzchnia dachu 325.00 m²
- Wysokość budynku 5.68 m
- Min. wymiary działki 35.00x20.00 m
- Garaż 178.25 m²
- Pracownia Pro Arte
Technologia budowy
Technologia tradycyjna :
- ściany zewnętrzne nośne murowane grubości 25cm
- wszystkie ściany wykonane z pustaków ceramicznych "POROTHERM"
- wysokość budynku 5,68m
- dach jednospadowy 3°
- więźba dachowa drewniana
- pokrycie dachu papa lub gonty bitumiczne
- wymiar bramy garażowej 4,4x3,5m
Stal: 979.47 m2
Opis
Budynek gospodarczy, wolnostojący. Projekt składa się z części architektonicznej, konstrukcyjnej i wewnętrznej instalacji elektrycznej. W projekcie załączone są podstawowe zestawienie stali, drewna i stolarki okienno-drzwiowej. Do projektu dołączamy bezpłatną zgodę na wprowadzenie zmian, oświadczenie projektantów o wykonaniu projektu zgodnie z obowiązującymi normami i przepisami oraz kserokopie uprawnień projektantów wraz z aktualnym wpisem do izby. W przypadku zamówienia projektu w technologii lekkiej, drewnianej konstrukcji szkieletowej, powierzchnia użytkowa budynku jest o około 7% większa.
Rzuty
RZUT
- Pom. Gospodarcze 22 m2
- Pom. Gospodarcze 40.6 m2
- Garaż/Magazyn 178.25 m2
- Kotłownia 28.41 m2
- Szatnia 22.6 m2
Rzuty
RZUT
- Pom. Gospodarcze 22 m2
- Pom. Gospodarcze 40.6 m2
- Garaż/Magazyn 178.25 m2
- Kotłownia 28.41 m2
- Szatnia 22.6 m2
Dbamy o swoich Klientów, jak nikt inny!
Do każdego projektu zakupionego za pośrednictwem serwisu kreoDOM.pl otrzymasz książeczkę z rabatami na zakupy w firmach Komfort, Fachowiec, Domino Łazienki, Komandor, Witek Home i innych. Książeczka na pewno okaże się przydatna podczas urządzania Twojego wymarzonego domu!
Książeczka z rabatami do takich firm jak: Komfort, Domino Łazienki, Fachowiec, Vox, Komandor, Witek Home i innych
Gwarancja
bezpiecznych zakupów
Dodatkowe pakiety projektowe
- Kosztorys inwestorski Zapytaj o dostępność