Dane techniczne
- Powierzchnia użytkowa 29.12 m²
- Powierzchnia zabudowy 31.65 m²
- Kubatura 111.00 m³
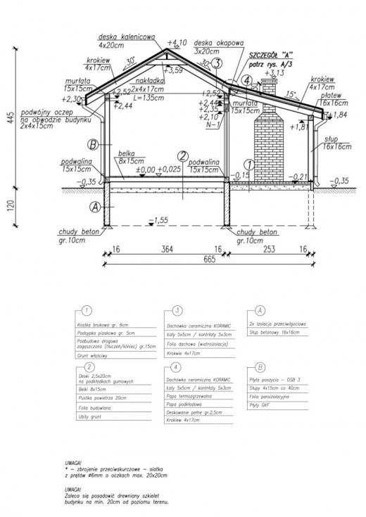
- Kąt nachylenia dachu 30.00°
- Powierzchnia dachu 16.50 m²
- Wysokość budynku 4.45 m
- Min. wymiary działki 10.76x10.15 m
- Pracownia Pro Arte
Technologia budowy
Technologia tradycyjna :
- ściany zewnętrzne murowane grubości 25 cm
- wszystkie ściany wykonane z pustaków ceramicznych "POROTHERM".
- konstrukcja więźby dachowej drewniana, pokrycie dachówką ceramiczną.
Technologia szkieletu drewnianego :
- ściany zewnętrzne : słupki 4x15 rozstawione max. co 40cm obite zewnątrz płytą OSB 3 1,2cm , a wewnątrz płytą GKF 1,25cm, przestrzeń pomiędzy słupkami wypełniona wełną mineralną 15cm.
- konstrukcja więźşby dachowej drewniana, pokrycie dachówką ceramiczną.
- docieplenie warstwą styropianu gr. 5 cm.
Opis
Budynek gospodarczy z werandą z grillem, wolnostojący, parterowy, niepodpiwniczony
Rzuty
RZUT PRZYZIEMIA
- Pomieszczenie Gosp. 16.32 m2
- Weranda z grillem 12.8 m2
Rzuty
RZUT PRZYZIEMIA
- Pomieszczenie Gosp. 16.32 m2
- Weranda z grillem 12.8 m2
Dbamy o swoich Klientów, jak nikt inny!
Do każdego projektu zakupionego za pośrednictwem serwisu kreoDOM.pl otrzymasz książeczkę z rabatami na zakupy w firmach Komfort, Fachowiec, Domino Łazienki, Komandor, Witek Home i innych. Książeczka na pewno okaże się przydatna podczas urządzania Twojego wymarzonego domu!
Książeczka z rabatami do takich firm jak: Komfort, Domino Łazienki, Fachowiec, Vox, Komandor, Witek Home i innych
Gwarancja
bezpiecznych zakupów
Dodatkowe pakiety projektowe
- Kosztorys inwestorski Zapytaj o dostępność