Dane techniczne
- Powierzchnia użytkowa 35.77 m²
- Powierzchnia zabudowy 42.88 m²
- Kubatura 165.55 m³
- Kąt nachylenia dachu 35.00°
- Powierzchnia dachu 70.00 m²
- Wysokość budynku 4.96 m
- Min. wymiary działki 11.90x16.75 m
- Garaż 25.21 m²
- Pracownia Pro Arte
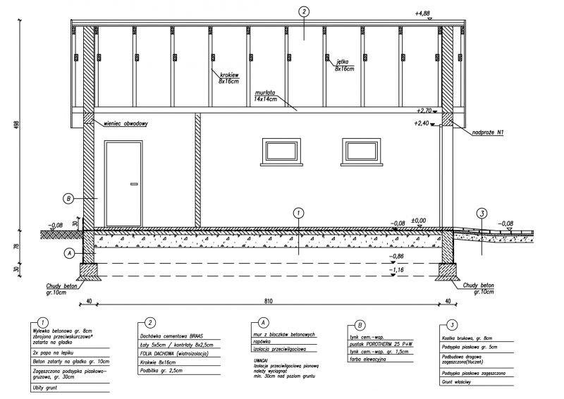
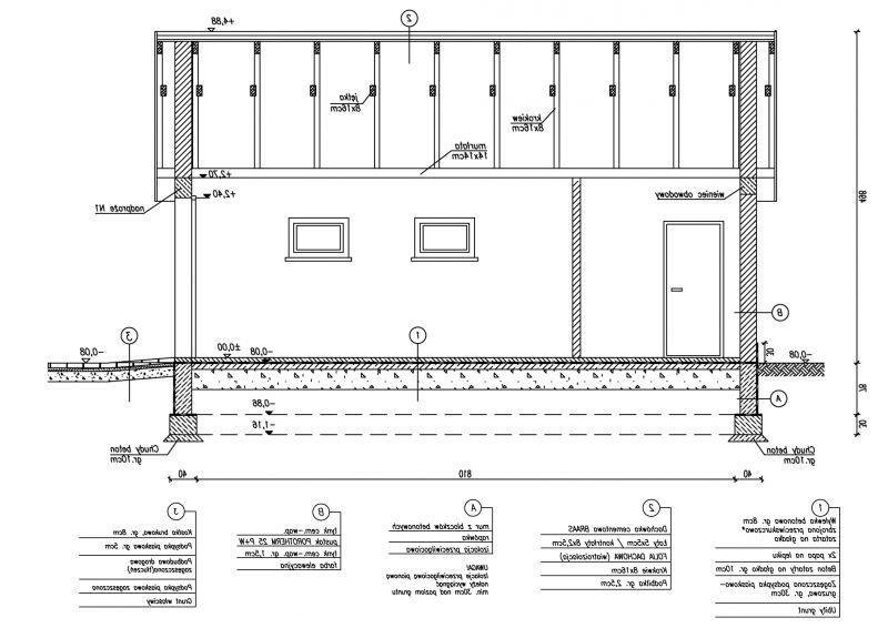
Technologia budowy
Technologia tradycyjna :
- ściany zewnętrzne nośne murowane grubości 25cm
- wszystkie ściany wykonane pustaków ceramicznych "POROTHERM"
- więźba dachowa drewniana
- pokrycie dachu dachówka cementowa bądź ceramiczna
- wymiar bramy garażowej 2,4x2,4m
Stal: 275.06 m2
Opis
Budynek gospodarczy, wolnostojący. Projekt składa się z części architektonicznej, konstrukcyjnej i wewnętrznej instalacji elektrycznej. W projekcie załączone są podstawowe zestawienie stali, drewna i stolarki okienno-drzwiowej. Do projektu dołączamy bezpłatną zgodę na wprowadzenie zmian, oświadczenie projektantów o wykonaniu projektu zgodnie z obowiązującymi normami i przepisami oraz kserokopie uprawnień projektantów wraz z aktualnym wpisem do izby. W przypadku zamówienia projektu w technologii lekkiej, drewnianej konstrukcji szkieletowej, powierzchnia użytkowa budynku jest o około 7% większa.
Rzuty
PRZYZIEMIE
- Pom. gospodarcze 10.56 m2
- Garaż 25.21 m2
Rzuty
PRZYZIEMIE
- Pom. gospodarcze 10.56 m2
- Garaż 25.21 m2
Dbamy o swoich Klientów, jak nikt inny!
Do każdego projektu zakupionego za pośrednictwem serwisu kreoDOM.pl otrzymasz książeczkę z rabatami na zakupy w firmach Komfort, Fachowiec, Domino Łazienki, Komandor, Witek Home i innych. Książeczka na pewno okaże się przydatna podczas urządzania Twojego wymarzonego domu!
Książeczka z rabatami do takich firm jak: Komfort, Domino Łazienki, Fachowiec, Vox, Komandor, Witek Home i innych
Gwarancja
bezpiecznych zakupów
Dodatkowe pakiety projektowe
- Kosztorys inwestorski Zapytaj o dostępność