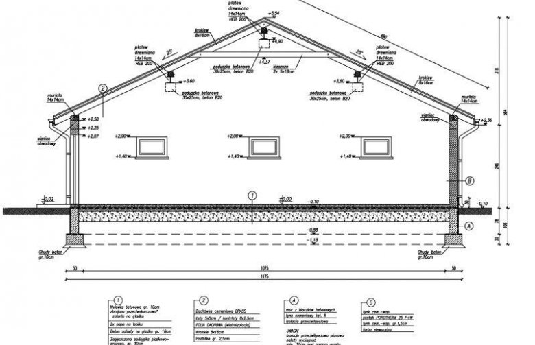
- ściany zewnętrzne nośne murowane grubości 25cm
- wszystkie ściany wykonane pustaków ceramicznych "POROTHERM"
- więźba dachowa drewniana
- pokrycie dachu dachówka ceramiczna
- wymiar bramy garażowej 2,8x3,0m
- wymiar bramy garażowej 2,4x2,25m
Stal: 412.4 m2
Budynek gospodarczy, wolnostojący. Projekt składa się z części architektonicznej, konstrukcyjnej i wewnętrznej instalacji elektrycznej. W projekcie załączone są podstawowe zestawienie stali, drewna i stolarki okienno-drzwiowej. Do projektu dołączamy bezpłatną zgodę na wprowadzenie zmian, oświadczenie projektantów o wykonaniu projektu zgodnie z obowiązującymi normami i przepisami oraz kserokopie uprawnień projektantów wraz z aktualnym wpisem do izby. W przypadku zamówienia projektu w technologii lekkiej, drewnianej konstrukcji szkieletowej, powierzchnia użytkowa budynku jest o około 7% większa.