Dane techniczne
- Powierzchnia użytkowa 62.53 m²
- Powierzchnia zabudowy 72.15 m²
- Kubatura 298.17 m³
- Kąt nachylenia dachu 30.00°
- Powierzchnia dachu 109.50 m²
- Wysokość budynku 5.07 m
- Min. wymiary działki 19.10x13.50 m
- Garaż 59.05 m²
- Pracownia Pro Arte
Technologia budowy
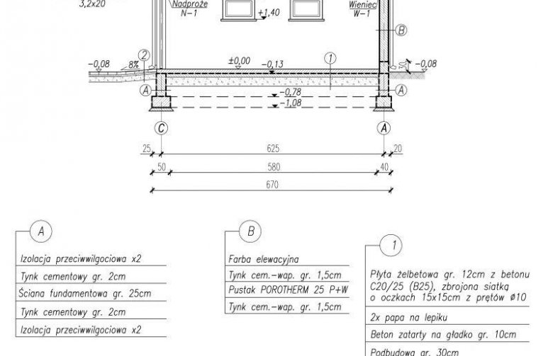
Technologia tradycyjna :
- ściany zewnętrzne nośne murowane grubości 25cm
- wszystkie ściany wykonane z pustaków ceramicznych "POROTHERM"
- więźba dachowa drewniana
- pokrycie dachu dachówka ceramiczna
- wymiar bramy garażowej 2,4x2,4m
Stal: 586.17 m2
Opis
Budynek gospodarczy, wolnostojący. Projekt składa się z części architektonicznej, konstrukcyjnej i wewnętrznej instalacji elektrycznej. W projekcie załączone są podstawowe zestawienie stali, drewna i stolarki okienno-drzwiowej. Do projektu dołączamy bezpłatną zgodę na wprowadzenie zmian, oświadczenie projektantów o wykonaniu projektu zgodnie z obowiązującymi normami i przepisami oraz kserokopie uprawnień projektantów wraz z aktualnym wpisem do izby. W przypadku zamówienia projektu w technologii lekkiej, drewnianej konstrukcji szkieletowej, powierzchnia użytkowa budynku jest o około 7% większa.
Rzuty
PRZYZIEMIE
- Garaż 59.05 m2
- Skład na odpady 1.74 m2
- Skład drewna 1.74 m2
Rzuty
PRZYZIEMIE
- Garaż 59.05 m2
- Skład na odpady 1.74 m2
- Skład drewna 1.74 m2
Dbamy o swoich Klientów, jak nikt inny!
Do każdego projektu zakupionego za pośrednictwem serwisu kreoDOM.pl otrzymasz książeczkę z rabatami na zakupy w firmach Komfort, Fachowiec, Domino Łazienki, Komandor, Witek Home i innych. Książeczka na pewno okaże się przydatna podczas urządzania Twojego wymarzonego domu!
Książeczka z rabatami do takich firm jak: Komfort, Domino Łazienki, Fachowiec, Vox, Komandor, Witek Home i innych
Gwarancja
bezpiecznych zakupów
Dodatkowe pakiety projektowe
- Kosztorys inwestorski Zapytaj o dostępność