Ściany zewnętrzne 2-warstwowe: Beton komórkowy ( 24cm) / Pustak ceramiczny (25cm) + styropian 20cm Uściany < 0,20 W/(m2*K) – warunek spełniony.
Ławy fundamentowe tradycyjne: Ściany fundamentowe betonowe gr.24(25cm) z bloczków betonowych lub wylewane.
Stropy: płyta żelbetowa. Zamiennie można zastosować strop gęstożeberkowy typu TERIVA .
Konstrukcja dachu: tradycyjna drewniana, pokrycie dachu z dachówki ceramicznej.
Elewacje: pokryte tynkiem strukturalnym cienkowarstwowym.
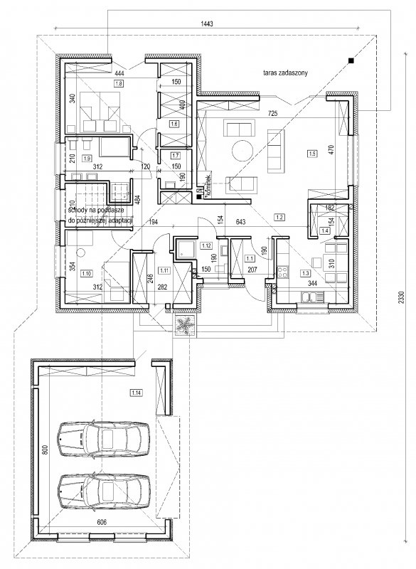
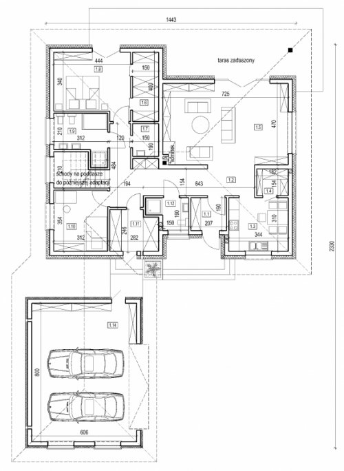
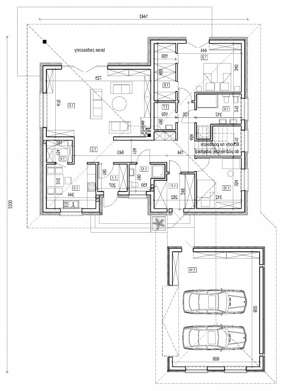
Dom parterowy z poddaszem do późniejszej adaptacji. Na poddasze prowadzą standardowe schody dwubiegowe umieszczone na parterze domu. Poddasze o powierzchni 64.49 m2 można dowolnie zagospodarować np. dwie sypialnie, łazienka i garderoby. W projekcie przewidziano obszerny garaż na dwa samochody osobowe. Garaż można wykonać jako kolejny etap budowy po bryle głównej budynku.
Energooszczędność:
Wersja standardowa:
Projekt spełnia wymagania cieplne dla nowo projektowanych domów określone w WT2008 (Rozporządzenie Ministra Infrastruktury dotyczące warunków technicznych, jakim powinny odpowiadać budynki i ich usytuowanie ). Charakterystyka energetyczna w granicach 120 [kWh/m2/rok].
Wersja energooszczędna:
Projekt dostępny w wersji energooszczędnej .Czas realizacji zamówienia 10dni.
Charakterystyka energetyczna w granicach 75 [kWh/m2/rok].
Projekt w tej wersji posiada instalację wentylacji z odzyskiem ciepła oraz zmodyfikowane grubości izolacji fundamentów, podłóg, ścian, stropów i dachu.
1.1 PRZEDSIONEK 3.78
1.2 PRZEDPOKÓJ 17.85
1.3 KUCHNIA 10.40
1.4 SPIŻARNIA/SCHOWEK 2.67
1.5 POKÓJ DZIENNY 33.40
1.6 GARDEROBA 5.78
1.7 PRALNIA 2.72
1.8 SYPIALNIA 2 OS. 15.48
1.9 ŁAZIENKA 7.55
1.10 POKÓJ 10.78
1.11 POMIESZCZENIE GOSPODARCZE 6.23
1.12 WC 3.72
garaż 47.92
RAZEM PU. PARTERU 120.36