Dane techniczne
- Powierzchnia użytkowa 116.00 m²
- Powierzchnia zabudowy 206.60 m²
- Kubatura 965.00 m³
- Kąt nachylenia dachu 30.00°
- Wysokość budynku 5.95 m
- Min. wymiary działki 23.40x20.70 m
- Garaż 34.80 m²
- Pracownia HG ATELIER
Technologia budowy
Ściany:
Ściany zewnętrzne warstwowe:
* pustak ceramiczny MAX 29 cm
* styropian 15 cm
Ściany wewnętrzne:
* cegła kratówka 25 cm (nośne)
* cegła kratówka 12 cm (działowe)
Stropy:
Strop żelbetowy 15 cm
Dach
Konstrukcja dachu drewniana. Kąt nachylenia połaci 30
Opis
Dom jednorodzinny, przeznaczony dla 4 osobowej rodziny
Budynek wolnostojący, parterowy (niepodpiwniczony) z nieużytkowym poddaszem.
W budynku zaprojektowano dwie strefy:
* dzienną (parter), w skład której wchodzą - wiatrołap; hall; kuchnia; spiżarnia; salon; W.C; kotłownia i garaż (dwustanowiskowy);
* oraz strefę nocną, w której znajdują się trzy sypialnie i łazienka.
Budynek o wymiarach 16,5 m
Rzuty
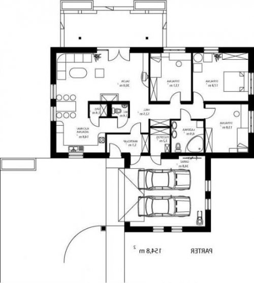
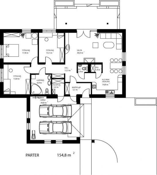
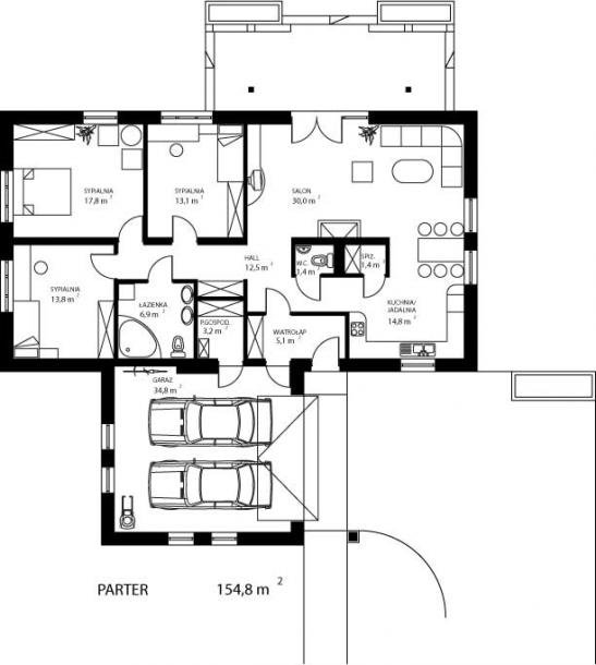
RZUT PARTERU
- Wiatrołap 5,1 m2
- Hall 6,3 m2
- W.C 1,4 m2
- Kuchnia/Jadalnia 14,8 m2
- Spiżarnia 1,4 m2
- Salon 30,0 m2
- Korytarz 6,2 m2
- Sypialnia 13,1 m2
- Sypialnia 17,8 m2
- Sypialnia 13,8 m2
- Łazienka 6,9 m2
- Kotłownia 3,2 m2
- Garaż 34,8 m2
Rzuty
RZUT PARTERU
- Wiatrołap 5,1 m2
- Hall 6,3 m2
- W.C 1,4 m2
- Kuchnia/Jadalnia 14,8 m2
- Spiżarnia 1,4 m2
- Salon 30,0 m2
- Korytarz 6,2 m2
- Sypialnia 13,1 m2
- Sypialnia 17,8 m2
- Sypialnia 13,8 m2
- Łazienka 6,9 m2
- Kotłownia 3,2 m2
- Garaż 34,8 m2
Dbamy o swoich Klientów, jak nikt inny!
Do każdego projektu zakupionego za pośrednictwem serwisu kreoDOM.pl otrzymasz książeczkę z rabatami na zakupy w firmach Komfort, Fachowiec, Domino Łazienki, Komandor, Witek Home i innych. Książeczka na pewno okaże się przydatna podczas urządzania Twojego wymarzonego domu!
Książeczka z rabatami do takich firm jak: Komfort, Domino Łazienki, Fachowiec, Vox, Komandor, Witek Home i innych
Gwarancja
bezpiecznych zakupów
Dodatkowe pakiety projektowe
- Kosztorys inwestorski cena ustalana telefonicznie