Dane techniczne
- Powierzchnia użytkowa 120.71 m²
- Powierzchnia zabudowy 207.00 m²
- Kubatura 427.58 m³
- Kąt nachylenia dachu 35.00°
- Powierzchnia dachu 325.00 m²
- Wysokość budynku 7.37 m
- Min. wymiary działki 28.30x19.90 m
- Garaż 36.30 m²
- Pracownia LK & Projekt
Technologia budowy
- Okna i drzwi balkonowe: PCV firmy Oknoplast w kolorze złoty dąb
- Elewacje: wykończone tynkiem silikonowym, cegła elewacyjna Lateran firmy Wienerberger, cokół obłożony płytami z białego granitu
- Pokrycie dachu: dachówka ceramiczna Koramic Actua 10 firmy Wienerberger, kolor: czarna angoba
- Konstrukcja dachu: drewniana docieplona wełną mineralną gr. 30 cm firmy Rockwool
- Ściany wewnętrzne: pustaki ceramiczne Porotherm Dryfix o gr.25 cm i 11,5 cm firmy Wienerberger
- Strop: żelbetowy
- Ściany zewnętrzne: pustaki ceramiczne Porotherm Dryfix o gr. 30 cm firmy Wienerberger, styropian Gold Fasada o gr.20 cm firmy Termo Organika
- Ławy fundamentowe: żelbetowe
- Ściany fundamentowe: pustaki szalunkowe o gr. 25cm , 30 cm, styropian Gold Fundament o gr.20 cm firmy Termo Organika
- Sposób ogrzewania: kocioł na gaz
- Wentylacja: mechaniczna z rekuperacją
- Koszt orientacyjny (bez Vat): 555 300.00 zł.
Opis
Projekt parterowego domu jednorodzinnego. Posiada przestronne pomieszczenie strychowe.
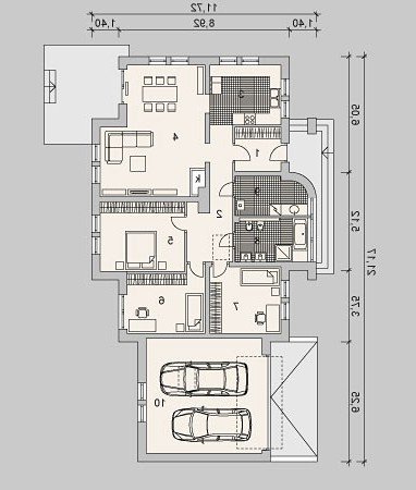
Rzuty
PARTER
- Sypialnia 213,25 m²
- Sypialnia 313,06 m²
STRYCH
- Pomieszczenie strychowe 210,25 m²(36,22
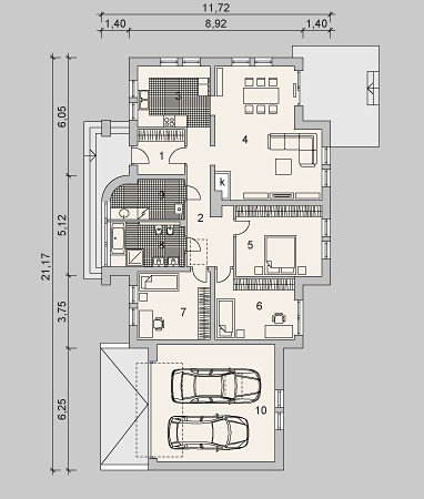
Rzuty
PARTER
- Sypialnia 213,25 m²
- Sypialnia 313,06 m²
STRYCH
- Pomieszczenie strychowe 210,25 m²(36,22
Dbamy o swoich Klientów, jak nikt inny!
Do każdego projektu zakupionego za pośrednictwem serwisu kreoDOM.pl otrzymasz książeczkę z rabatami na zakupy w firmach Komfort, Fachowiec, Domino Łazienki, Komandor, Witek Home i innych. Książeczka na pewno okaże się przydatna podczas urządzania Twojego wymarzonego domu!
Książeczka z rabatami do takich firm jak: Komfort, Domino Łazienki, Fachowiec, Vox, Komandor, Witek Home i innych
Gwarancja
bezpiecznych zakupów
Dodatkowe pakiety projektowe
- Kosztorys inwestorski cena ustalana indywidualnie
- Kolektory słoneczne cena ustalana indywidualnie
- Kominek z DGP cena ustalana indywidualnie
- Wentylacja mechaniczna z rekuperacją cena ustalana indywidualnie
- Pompa ciepła cena ustalana indywidualnie