Dane techniczne
- Powierzchnia użytkowa 123.99 m²
- Powierzchnia zabudowy 210.44 m²
- Kubatura 453.07 m³
- Kąt nachylenia dachu 30.00°
- Powierzchnia dachu 313.42 m²
- Wysokość budynku 6.68 m
- Min. wymiary działki 24.28x25.03 m
- Garaż 35.82 m²
- Pracownia Domena Projekt
Technologia budowy
Fundamenty:
bezpośrednie, na ławach i stopach fundamentowych
Ściany zewnętrzne:
bloczki z bet. komórkowego (odm. 600) - 24 cm
+ styropian TERMO ORGANIKA typ Fasada 12 cm
Ściany wewnętrzne:
bloczki z bet. komórkowego (odm. 600) - 24 cm (działowe - 12 cm)
Strop:
belki drewniane
Elewacje:
tynk - System Platinum firmy TERMO ORGANIKA,
deska elewacyjna
Pokrycie dachu:
dachówka cementowa
Konstrukcja dachu:
drewniana o układzie konstrukcyjnym mieszanym
Schody wewnętrzne:
wyłaz na poddasze
Ogrzewanie:
kocioł gazowy jednofunkcyjny kondensacyjny,
dodatkowe źródło ciepła - kominek z płaszczem wodnym
Opis
Oryginalny, nowoczesny dom parterowy z poddaszem nieużytkowym.
W projekcie zastosowano wyraźny podział na strefę dzienną i nocną.
Część dzienną domu stanowią salon, kuchnia oraz jadalnia. Otwarta przestrzeń tych pomieszczeń tworzy integralną całość. Strefa nocna domu to trzy sypialnie oraz obszerna łazienka.
Wizytówką projektu są duże przeszklenia, które wpływają dodatnio zarówno na wygląd zewnętrzny jak i wnętrze domu.
Przestronny taras dostępny z jadalni, salonu oraz dwóch sypialni, pozwala na relaks na świeżym powietrzu, bez zakłócania spokoju pozostałym domownikom.
Niecodzienną propozycją jest garaż z dodatkowym aneksem, w którym pomieścimy poręczne regały.
Dodatkowym atutem domku jest późniejsza możliwość adaptacji strychu na pomieszczenia mieszkalne.
Projekt w standardzie posiada dodatkowo projekt ogrzewania kominkiem z płaszczem wodnym.
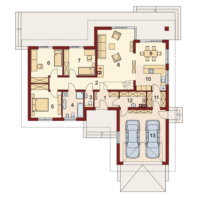
Rzuty
RZUT PARTERU
- 1. Wiatrołap 5,58 m2
- 2. Hall 10,73 m2
- 3. WC 2,00 m2
- 4. Łazienka 8,08 m2
- 5. Pokój 13,93 m2
- 6. Pokój 14,29 m2
- 7. Pokój 12,35 m2
- 8. Salon 30,36 m2
- 9. Jadalnia 10,45 m2
- 10. Kuchnia 11,95 m2
- 11. Spiżarnia 4,27 m2
- 12. Pom.gosp. 5,78 m2
- 13. Garaż 35,82 m2
Rzuty
RZUT PARTERU
- 1. Wiatrołap 5,58 m2
- 2. Hall 10,73 m2
- 3. WC 2,00 m2
- 4. Łazienka 8,08 m2
- 5. Pokój 13,93 m2
- 6. Pokój 14,29 m2
- 7. Pokój 12,35 m2
- 8. Salon 30,36 m2
- 9. Jadalnia 10,45 m2
- 10. Kuchnia 11,95 m2
- 11. Spiżarnia 4,27 m2
- 12. Pom.gosp. 5,78 m2
- 13. Garaż 35,82 m2
Dbamy o swoich Klientów, jak nikt inny!
Do każdego projektu zakupionego za pośrednictwem serwisu kreoDOM.pl otrzymasz książeczkę z rabatami na zakupy w firmach Komfort, Fachowiec, Domino Łazienki, Komandor, Witek Home i innych. Książeczka na pewno okaże się przydatna podczas urządzania Twojego wymarzonego domu!
Książeczka z rabatami do takich firm jak: Komfort, Domino Łazienki, Fachowiec, Vox, Komandor, Witek Home i innych
Gwarancja
bezpiecznych zakupów
Dodatkowe pakiety projektowe
- Kosztorys papierowy 300,00 zł
- Kosztorys elektroniczny 360,00 zł
- Rekuperacja 420,00 zł
- Ogrzewanie podłogowe 360,00 zł
- Pompa ciepła 370,00 zł
- Kominek z płaszczem 240,00 zł
- Kominek z ciepłym powietrzem 360,00 zł
- Paliwo stałe 240,00 zł
- Pliki DWG 560,00 zł
- Egzemplarz dodatkowy 250,00 zł
- Solary 300,00 zł
- Wiata 350,00 zł
- Pergola 300,00 zł
- Garaż 900,00 zł