Dane techniczne
- Powierzchnia użytkowa 249.11 m²
- Powierzchnia zabudowy 272.66 m²
- Kubatura 942.30 m³
- Kąt nachylenia dachu 10.00°
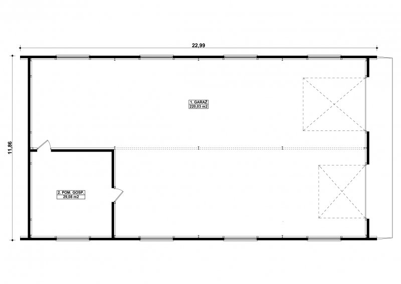
- Min. wymiary działki 22.99x11.86 m
- Garaż 220.03 m²
- Pracownia Kup projekt
Technologia budowy
Budynek konstrukcji stalowej. Ściany z płyty warstwowej. Bramy o wymiarach 3,50x4,00m i 3,50x3,00m. Więźba dachowa dwuspadowa, stalowa, pokryta płytą warstwową.
Opis
PROJEKT:
Projekt garażu dwustanowiskowego, parterowego, niepodpiwniczonego, przeznaczonego dla samochodów ciężarowych i dostawczych z pomieszczeniem gospodarczym. Do projektu dołączone jest zestawienie: stali, stolarki drzwiowej i okiennej, jak równieżbezpłatna zgoda na dokonanie zmian.
Dbamy o swoich Klientów, jak nikt inny!
Do każdego projektu zakupionego za pośrednictwem serwisu kreoDOM.pl otrzymasz książeczkę z rabatami na zakupy w firmach Komfort, Fachowiec, Domino Łazienki, Komandor, Witek Home i innych. Książeczka na pewno okaże się przydatna podczas urządzania Twojego wymarzonego domu!
Książeczka z rabatami do takich firm jak: Komfort, Domino Łazienki, Fachowiec, Vox, Komandor, Witek Home i innych
Gwarancja
bezpiecznych zakupów
Dodatkowe pakiety projektowe