Dane techniczne
- Powierzchnia użytkowa 244.00 m²
- Powierzchnia zabudowy 264.00 m²
- Kubatura 2090.00 m³
- Kąt nachylenia dachu 30.00°
- Powierzchnia dachu 350.00 m²
- Wysokość budynku 8.58 m
- Min. wymiary działki 29.00x20.00 m
- Garaż 181.50 m²
- Pracownia Pro Arte
Technologia budowy
Technologia tradycyjna , ściany murowane grubości 25 cm. Konstrukcja więźby dachowej drewniana, pokrycie dachówka ceramiczna.
Opis
Budynek gospodarczy wolnostojący , może pełnić funkcję garażu , magazynu , przechowalni ( np. na owoce i warzywa ) lub hali magazynowej. Projekt garażu składa się z czterech egzemplarzy a w tym części architektonicznej, konstrukcyjnej i instalacji wewnętrznej elektrycznej. W projekcie załączone są podstawowe zestawienie stali, drewna i stolarki okienno-drzwiowej. Do projektu dołączamy bezpłatną zgodę na wprowadzenie zmian, oświadczenie projektantów o wykonaniu projektu zgodnie z obowiązującymi normami i przepisami oraz kserokopie uprawnień projektantów wraz z aktualnym wpisem do izby.
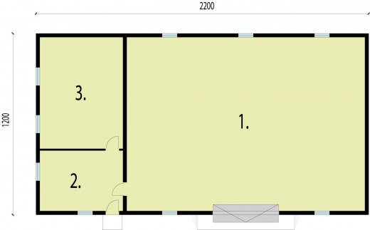
Rzuty
RZUT PRZYZIEMIA
- Garaż 40,50 m2
- Pom. Gospodarcze 22,00 m2
- Pom. Gospodarcze 40,50 m2
Rzuty
RZUT PRZYZIEMIA
- Garaż 40,50 m2
- Pom. Gospodarcze 22,00 m2
- Pom. Gospodarcze 40,50 m2
Dbamy o swoich Klientów, jak nikt inny!
Do każdego projektu zakupionego za pośrednictwem serwisu kreoDOM.pl otrzymasz książeczkę z rabatami na zakupy w firmach Komfort, Fachowiec, Domino Łazienki, Komandor, Witek Home i innych. Książeczka na pewno okaże się przydatna podczas urządzania Twojego wymarzonego domu!
Książeczka z rabatami do takich firm jak: Komfort, Domino Łazienki, Fachowiec, Vox, Komandor, Witek Home i innych
Gwarancja
bezpiecznych zakupów
Dodatkowe pakiety projektowe
- Kosztorys inwestorski Zapytaj o dostępność