Dane techniczne
- Powierzchnia użytkowa 48.36 m²
- Powierzchnia zabudowy 44.36 m²
- Kubatura 125.90 m³
- Kąt nachylenia dachu 35.00°
- Powierzchnia dachu 87.80 m²
- Wysokość budynku 5.38 m
- Min. wymiary działki 6.32x7.02 m
- Garaż 34.10 m²
- Pracownia LK & Projekt
Technologia budowy
- Ławy fundamentowe: żelbetowe
- Ściany fundamentowe: betonowe
- Ściany zewnętrzne: z pustaków ceramicznych typu 'Max' gr.29 cm firmy 'Leier' + styropian gr.12 cm
- Strop: żelbetowy
- Konstrukcja dachu: drewniana
- Pokrycie dachu: dachówką ceramiczną
- Elewacje: wykończone tynkiem mineralnym
- Okna i drzwi balkonowe: drewniane
- Wentylacja: grawitacyjna
Opis
Garaż wolnostojący z dwoma miejscami parkingowymi.
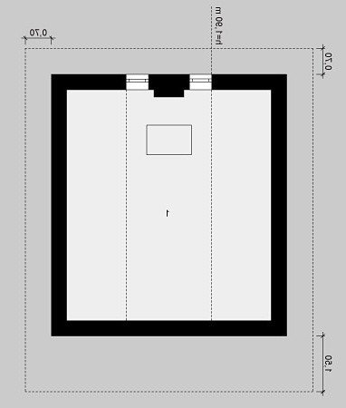
Rzuty
PARTER
Parter
1. Garaż: 34.10m
PODDASZE
Poddasze
1. Strych: (34.10) 14.26m
Rzuty
PARTER
Parter
1. Garaż: 34.10m
PODDASZE
Poddasze
1. Strych: (34.10) 14.26m
Dbamy o swoich Klientów, jak nikt inny!
Do każdego projektu zakupionego za pośrednictwem serwisu kreoDOM.pl otrzymasz książeczkę z rabatami na zakupy w firmach Komfort, Fachowiec, Domino Łazienki, Komandor, Witek Home i innych. Książeczka na pewno okaże się przydatna podczas urządzania Twojego wymarzonego domu!
Książeczka z rabatami do takich firm jak: Komfort, Domino Łazienki, Fachowiec, Vox, Komandor, Witek Home i innych
Gwarancja
bezpiecznych zakupów
Dodatkowe pakiety projektowe
- Kosztorys inwestorski cena ustalana indywidualnie
- Kolektory słoneczne cena ustalana indywidualnie
- Kominek z DGP cena ustalana indywidualnie
- Wentylacja mechaniczna z rekuperacją cena ustalana indywidualnie
- Pompa ciepła cena ustalana indywidualnie