Dane techniczne
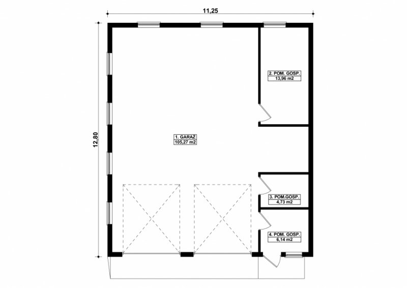
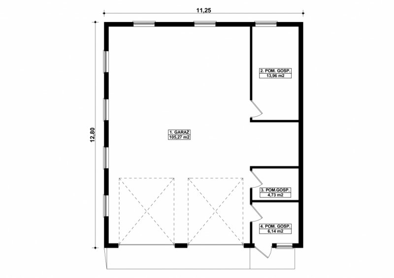
- Powierzchnia użytkowa 130.10 m²
- Powierzchnia zabudowy 144.00 m²
- Kubatura 830.60 m³
- Kąt nachylenia dachu 25.00°
- Wysokość budynku 6.93 m
- Garaż 105.27 m²
- Pracownia Kup projekt
Technologia budowy
Budynek wykonany w technologii tradycyjnej Ściany murowane z pustaków ceramicznych „POROTHERM” grubości 25cm i cegły kratówki grubości 12cm. Bramy o wymiarach 3,20x3,75m. Więźba dachowa dwuspadowa, drewniana, pokryta blachodachówką.
Opis
PROJEKT:
Projekt garażu dwustanowiskowego, parterowego, niepodpiwniczonego, przeznaczonego dla samochodów dostawczych z trzema pomieszczeniami gospodarczymi. Do projektu dołączone jest zestawienie: stali, więźby dachowej oraz stolarki drzwiowej i okiennej, jak równieżbezpłatna zgoda na dokonanie zmian.
Dbamy o swoich Klientów, jak nikt inny!
Do każdego projektu zakupionego za pośrednictwem serwisu kreoDOM.pl otrzymasz książeczkę z rabatami na zakupy w firmach Komfort, Fachowiec, Domino Łazienki, Komandor, Witek Home i innych. Książeczka na pewno okaże się przydatna podczas urządzania Twojego wymarzonego domu!
Książeczka z rabatami do takich firm jak: Komfort, Domino Łazienki, Fachowiec, Vox, Komandor, Witek Home i innych
Gwarancja
bezpiecznych zakupów
Dodatkowe pakiety projektowe