Dane techniczne
- Powierzchnia użytkowa 32.90 m²
- Powierzchnia zabudowy 39.30 m²
- Kubatura 109.96 m³
- Kąt nachylenia dachu 28.00°
- Powierzchnia dachu 69.60 m²
- Wysokość budynku 4.93 m
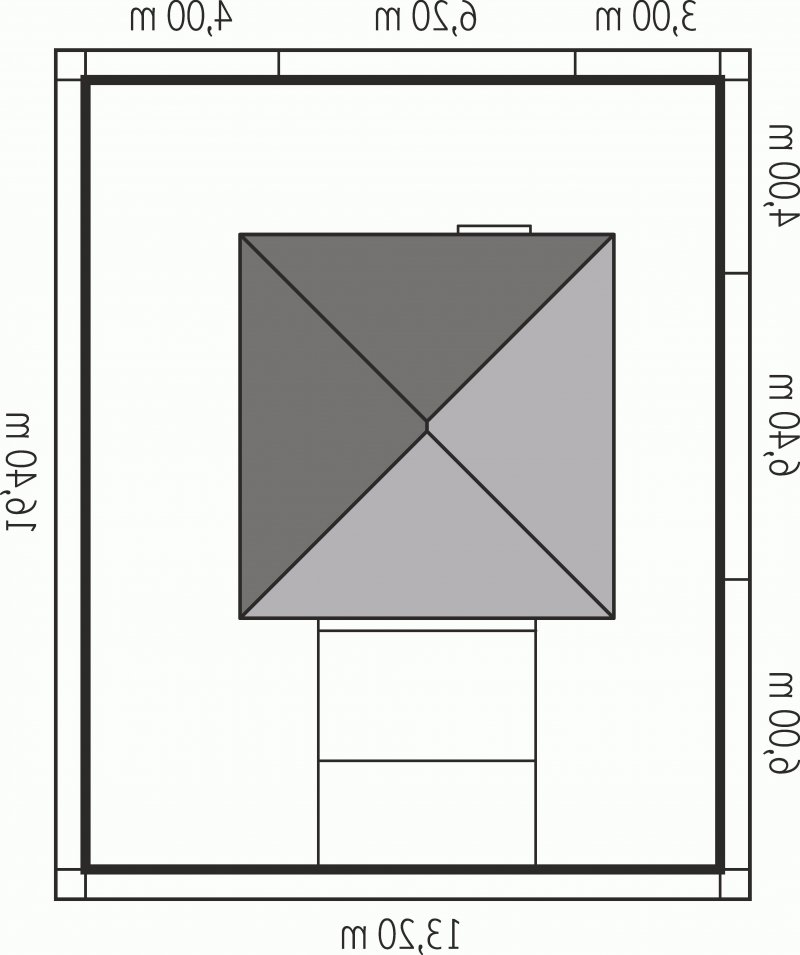
- Min. wymiary działki 13.20x16.40 m
- Garaż 32.90 m²
- Pracownia Archipelag
Technologia budowy
Garaż zaprojektowany w technologii murowej. Dach czterospadowy o konstrukcji drewnianej pokryty dachówką cementową IBF. Więźba dachowa dostępna również w systemie prefabrykacji drewnianej. Elewacje wykończono tynkiem mineralnym. Stolarka okienna drewniana lub PCV.
Opis
Garaż dwustanowiskowy z szeroką bramą wjazdową. Kompaktowy budynek G18 z łatwością wkomponuje się w przestrzeń każdej działki. Elegancka bryła garażu harmonijnie dopasuje się zarówno do domu w stylu tradycyjnym, jak i nowoczesnym. Bryła i styl wykończenia garażu harmonijnie skomponują się m.in. z domem Edek.
Dbamy o swoich Klientów, jak nikt inny!
Do każdego projektu zakupionego za pośrednictwem serwisu kreoDOM.pl otrzymasz książeczkę z rabatami na zakupy w firmach Komfort, Fachowiec, Domino Łazienki, Komandor, Witek Home i innych. Książeczka na pewno okaże się przydatna podczas urządzania Twojego wymarzonego domu!
Książeczka z rabatami do takich firm jak: Komfort, Domino Łazienki, Fachowiec, Vox, Komandor, Witek Home i innych
Gwarancja
bezpiecznych zakupów
Dodatkowe pakiety projektowe
- Kosztorys inwestorski cena ustalana indywidualnie
- Wentylacja mechaniczna z rekuperacją 700,00 zł
- Wentylacja mechaniczna + GPWC 700,00 zł
- Kolektory Słoneczne 400,00 zł
- Panele Fotowoltaiczne 400,00 zł
- Pompa Ciepła 500,00 zł
- Kominek z DGP 400,00 zł
- Biologiczna oczyszczalnia ścieków 150,00 zł
- Centralny Odkurzacz 300,00 zł
- Szambo przydomowe 200,00 zł
- Dodatkowy egzemplarz projektu 150,00 zł