Dane techniczne
- Powierzchnia użytkowa 69.33 m²
- Powierzchnia zabudowy 81.29 m²
- Kubatura 173.54 m³
- Kąt nachylenia dachu 20.00°
- Powierzchnia dachu 113.70 m²
- Wysokość budynku 4.86 m
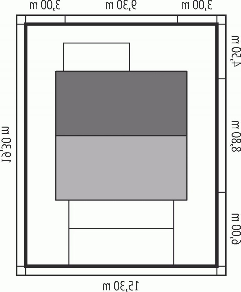
- Min. wymiary działki 15.30x19.30 m
- Garaż 50.11 m²
- Pracownia Archipelag
Technologia budowy
Garaż zaprojektowany w technologii murowej ze stropem drewnianym. Dach dwuspadowy o konstrukcji drewnianej pokryty blachodachówką. Więźba dachowa dostępna również w systemie prefabrykacji drewnianej. Elewacje wykończono tynkiem mineralnym. Cokół kamienny. Stolarka okienna drewniana lub PCV.
Opis
Garaż trzystanowiskowy z trzema osobnymi bramami wjazdowymi oraz dwoma pomieszczeniami gospodarczymi, dostępnymi zarówno z zewnątrz, jak i od wewnątrz budynku. Garaż G29 to komfortowa propozycja dla inwestorów, którzy oprócz wygodnego miejsca postojowego dla trzech pojazdów, poszukują również przestrzeni, w której z łatwością zmieszczą się domowe sprzęty i narzędzia, a także kameralny kącik majsterkowicza. Atrakcyjny wygląd zewnętrzny sprawia, że garaż dopasuje się zarówno do domu w stylu tradycyjnym, jak i nowoczesnym. Bryła i styl wykończenia garażu harmonijnie skomponują się m.in. z domem Bob. Istnieje możliwość dostawienia bryły garażu do budynku mieszkalnego.
Rzuty
PARTER
- Garaż 50.11 m2
- Pom. gospodarcze 9.61 m2
- Pom. gospodarcze 9.61 m2
Rzuty
PARTER
- Garaż 50.11 m2
- Pom. gospodarcze 9.61 m2
- Pom. gospodarcze 9.61 m2
Dbamy o swoich Klientów, jak nikt inny!
Do każdego projektu zakupionego za pośrednictwem serwisu kreoDOM.pl otrzymasz książeczkę z rabatami na zakupy w firmach Komfort, Fachowiec, Domino Łazienki, Komandor, Witek Home i innych. Książeczka na pewno okaże się przydatna podczas urządzania Twojego wymarzonego domu!
Książeczka z rabatami do takich firm jak: Komfort, Domino Łazienki, Fachowiec, Vox, Komandor, Witek Home i innych
Gwarancja
bezpiecznych zakupów
Dodatkowe pakiety projektowe
- Kosztorys inwestorski cena ustalana indywidualnie
- Wentylacja mechaniczna z rekuperacją 700,00 zł
- Wentylacja mechaniczna + GPWC 700,00 zł
- Kolektory Słoneczne 400,00 zł
- Panele Fotowoltaiczne 400,00 zł
- Pompa Ciepła 500,00 zł
- Kominek z DGP 400,00 zł
- Biologiczna oczyszczalnia ścieków 150,00 zł
- Centralny Odkurzacz 300,00 zł
- Szambo przydomowe 200,00 zł
- Dodatkowy egzemplarz projektu 150,00 zł