Ściany zewnętrzne i wewnętrzne nośne z betonu komórkowego (24cm), docieplone styropianem 20cm. Ścianki wewnętrze działowe na parterze z bloczków, na poddaszu z płyt GK bądź z bloczków. Ściany fundamentowe z bloczków betonowych. Strop gęstożebrowy Teriva. Wszystkie technologie można zmienić na etapie adaptacji. Elewacje wykończone tynkiem mineralnym. Tynki wewnętrzne gipsowe lub cementowo-wapienne. Dachówka cementowa lub ceramiczna. Stolarka okienna drewniana lub PCV.
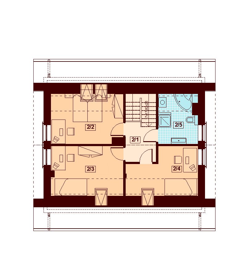
Armanda XS BIS to funkcjonalny, niewielki, piękny dom o prostej i taniej, dokładnie przemyślanej konstrukcji, przeznaczony dla 3-6 osobowej rodziny, o eleganckiej formie i współczesnej, subtelnej estetyce. Jest to budynek parterowy z użytkowym poddaszem, niepodpiwniczony. Na parterze zlokalizowana jest obszerna strefa dzienna składająca się z kuchni (która w zależności od potrzeb może być zamykana lub otwarta) jadalni oraz salonu otwartego na taras i ogród. Uzupełnieniem kuchni jest pojemna spiżarnia. Schody w holu w zależności od potrzeb mogą być otwarte na salon powiększając w ten sposób przestrzeń dzienną i stanowiąc ciekawy element architektoniczny, mogą też być odizolowane ścianką działową od salonu. Dzięki doświetleniu strefy dziennej zarówno od strony ogrodu jak i z boku dom nadaje się na każdą działkę, zarówno z wjazdem od północy jak i od południa, wschodu bądź zachodu. Dodatkowo na parterze zaprojektowano pokój który może służyć jako pokój gościnny bądź gabinet, łazienkę oraz pomieszczenie gospodarcze. W wiatrołapie przewidziano miejsce na dużą szafę wnękową. Na poddaszu zaprojektowano trzy pokoje oraz wygodną łazienkę. W projektowaniu domu szczególną uwagę zwrócono na atrakcyjny wygląd zewnętrzny, proporcjonalność bryły budynku, odpowiednie doświetlenie i funkcjonalne rozplanowanie pomieszczeń przy zachowaniu prostoty konstrukcji oraz zwartości bryły domu. Architektura domu to połączenie tradycji z nowoczesnością oraz elegancji z dbałością o proporcje, estetykę i funkcjonalność. Dom zaprojektowano jako energooszczędny. Dostępna również wersja projektu z lukarną od strony elewacji frontowej (projekt Armanda XS) oraz większe wersje domu, projekty: Armanda Mała BIS, Armanda Mała, Armanda, Armanda BIS, Belinda.