Ściany zewnętrzne i wewnętrzne nośne: z bloczków Ytong, docieplone 20cm styropianu.
Ścianki wewnętrze działowe: na parterze z bloczków Silka, na poddaszu z płyt GK bądź murowane.
Ściany fundamentowe: z bloczków betonowych.
Strop: gęstożebrowy Teriva.
Wszystkie technologie można zmienić na etapie adaptacji.
Elewacje: wykończone tynkiem mineralnym.
Tynki wewnętrzne: gipsowe lub cementowo-wapienne.
Dachówka: cementowa lub ceramiczna.
Stolarka okienna: drewniana lub PCV.
Działki o kształcie wydłużonego prostokąta uchodzą za nieco trudniejsze do optymalnego zagospodarowania. Projektanci wychodzą jednak naprzeciw zapotrzebowaniu Inwestorów i przygotowują projekty specjalnie zaplanowane z myślą o tzw. wąskich działkach. Projekt Diona Mała Bis przedstawia dom, który można zbudować na takiej właśnie nieruchomości. W tym przypadku wystarczająca szerokość działki wynosi 17,04 m. Budynek wyróżnia się bardzo prostą i zwartą bryłą, w którą wkomponowano jednostanowiskowy garaż. Tę przemyślaną konstrukcję wykończono zgodnie z najnowszymi trendami, nadając budynkowi reprezentacyjny wygląd, który z biegiem czasu nie straci na atrakcyjności. Dom zaprojektowano przy tym jako energooszczędny. W takim budynku nie mogło zabraknąć dużych przeszkleń, które zostały rozmieszczone w taki sposób, aby strefa dzienna była dobrze oświetlona niezależnie od tego, w którą stronę zostanie skierowana.
Pierwszym pomieszczeniem, w którym znajdziemy się po przekroczeniu progu domu Diona Mała Bis, jest wiatrołap z miejscem na szafę oraz z wejściem do garażu. Dalej na parterze znajduje się hol. Tuż za klatką schodową wygospodarowano miejsce na łazienkę z kabiną prysznicową oraz dużą kotłownię z piecem gazowym oraz wyjściem na zewnątrz. To pomieszczenie może zostać jednocześnie wykorzystane jako miejsce składowania narzędzi ogrodniczych. Najbardziej reprezentacyjnym wnętrzem, które zajmuje główną część dolnej kondygnacji, jest przestronny i znakomicie oświetlony salon z jadalnią oraz kominkiem. Do pokoju dziennego przylega częściowo otwarta kuchnia. Z drugiej strony natomiast salon łączy się z tarasem, który stanowi jego atrakcyjne, zewnętrzne przedłużenie.
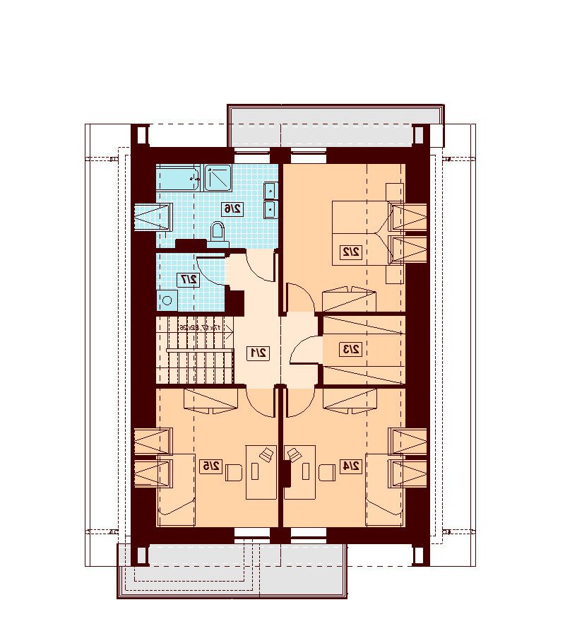
W domu Diona Mała Bis pomiędzy kondygnacjami zaprojektowano strop gęstożebrowy. Poddasze to bardziej zaciszna, przytulna część domu. Na domowników czekają tutaj trzy ustawne sypialnie; wszystkie z dostępem do balkonów. U góry zaplanowano także rodzinną łazienkę, pralnię oraz ogólnodostępną garderobę.