Dane techniczne
- Powierzchnia użytkowa 115.80 m²
- Powierzchnia zabudowy 125.30 m²
- Kubatura 674.00 m³
- Kąt nachylenia dachu 40.00°
- Wysokość budynku 8.06 m
- Min. wymiary działki 16.60x24.10 m
- Garaż 33.20 m²
- Pracownia Krajobrazy
Technologia budowy
W projekcie ściany wykonano z betonu komórkowego z ociepleniem, strop jest gęstożebrowy, więźba dachowa drewniana, pokrycie dachówką ceramiczną lub cementową. Elewacje tynkowane na fragmentach wariantowo obłożone płytką kamienną. Inne materiały i technologie w ramach adaptacji.
Opis
Projekt domu z garażem dwustanowiskowym. Na parterze znajduje się salon z miejscem na duży stół, otwarta kuchnia ze spiżarnią, dodatkowy pokój, łazienka oraz pomieszczenie gospodarcze. Na poddaszu zaprojektowano trzy przestronne sypialnie, łazienkę oraz strych.Tani w budowie dom przykryty prostym dwuspadowym dachem. Eleganckiego wyglądu dodają mu kamienne okładziny na elewacji zarówno od frontu, jak i od strony ogrodu. Projekt dostępny jest także w wersji lustrzanej.W projekcie ściany wykonano z betonu komórkowego z ociepleniem, strop jest gęstożebrowy, więźba dachowa drewniana, pokrycie dachówką ceramiczną lub cementową. Elewacje tynkowane na fragmentach wariantowo obłożone płytką kamienną. Inne materiały i technologie w ramach adaptacji.
Rzuty
1. wiatrołap 3.9m2
2. pokój dzienny z kuchnią 30.0m2
3. hall 8.5m2
4. pokój 12.3m2
5. spiżarnia 1.5m2
6. łazienka 3.9m2
7. pom. gospodarcze 6.6m2
8. garaż 33.2m2
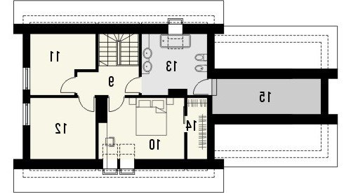
9. hall 4.8m2
10. pokój 12.7m2
11. pokój 8.6m2
12. pokój 10.1m2
13. łazienka 9.8m2
14. garderoba 3.1m2
15. strych
Rzuty
1. wiatrołap 3.9m2
2. pokój dzienny z kuchnią 30.0m2
3. hall 8.5m2
4. pokój 12.3m2
5. spiżarnia 1.5m2
6. łazienka 3.9m2
7. pom. gospodarcze 6.6m2
8. garaż 33.2m2
9. hall 4.8m2
10. pokój 12.7m2
11. pokój 8.6m2
12. pokój 10.1m2
13. łazienka 9.8m2
14. garderoba 3.1m2
15. strych
Dbamy o swoich Klientów, jak nikt inny!
Do każdego projektu zakupionego za pośrednictwem serwisu kreoDOM.pl otrzymasz książeczkę z rabatami na zakupy w firmach Komfort, Fachowiec, Domino Łazienki, Komandor, Witek Home i innych. Książeczka na pewno okaże się przydatna podczas urządzania Twojego wymarzonego domu!
Książeczka z rabatami do takich firm jak: Komfort, Domino Łazienki, Fachowiec, Vox, Komandor, Witek Home i innych
Gwarancja
bezpiecznych zakupów
Dodatkowe pakiety projektowe
- Kosztorys inwestorski 950 zł
- Zielony pakiet z pompą ciepła 750 zł
- Aktualizacja do WT2021 850 zł