Dane techniczne
- Powierzchnia użytkowa 116.20 m²
- Powierzchnia zabudowy 109.80 m²
- Kubatura 604.00 m³
- Kąt nachylenia dachu 40.00°
- Wysokość budynku 8.06 m
- Min. wymiary działki 16.60x21.70 m
- Garaż 19.30 m²
- Pracownia Krajobrazy
Technologia budowy
Ściany budynku zaprojektowano z betonu komórkowego z ociepleniem, strop gęstożebrowy, więźbę drewnianą, pokrycie dachówką ceramiczną lub cementową. Inne materiały można wykorzystać po zmianach w trakcie adaptacji.
Opis
Projekt domu jednorodzinnego z poddaszem użytkowym. Na parterze zaprojektowano przestronną strefę dzienną z otwartą kuchnią na salon oraz dodatkowy pokój idealny na gabinet czy pokój gościnny, łazienkę i pomieszczenie gospodarcze. Piętro domu zajmują trzy wygodne sypialnie, garderoba dla jednej z nich, łazienka oraz strych.
Dom o prostej, ekonomicznej bryle przykryty klasycznym dachem dwuspadowym. Kamienne fragmenty elewacji od frontu oraz od strony ogrodu to cechy charakterystyczne tego budynku. Projekt dostępny jest w wersji z garażem jednostanowiskowym lub bez, a także w odbiciu lustrzanym.
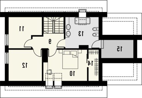
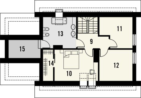
Rzuty
1. wiatrołap 3.9m2
2. pokój dzienny z kuchnią 30.0m2
3. hall 8.9m2
4. pokój 12.3m2
5. spiżarnia 1.5m2
6. łazienka 3.9m2
7. pom. gospodarcze 6.6m2
8. garaż 19.3m2
9. hall 4.8m2
10. pokój 12.7m2
11. pokój 8.6m2
12. pokój 10.1m2
13. łazienka 9.8m2
14. garderoba 3.1m2
15. strych
Rzuty
1. wiatrołap 3.9m2
2. pokój dzienny z kuchnią 30.0m2
3. hall 8.9m2
4. pokój 12.3m2
5. spiżarnia 1.5m2
6. łazienka 3.9m2
7. pom. gospodarcze 6.6m2
8. garaż 19.3m2
9. hall 4.8m2
10. pokój 12.7m2
11. pokój 8.6m2
12. pokój 10.1m2
13. łazienka 9.8m2
14. garderoba 3.1m2
15. strych
Dbamy o swoich Klientów, jak nikt inny!
Do każdego projektu zakupionego za pośrednictwem serwisu kreoDOM.pl otrzymasz książeczkę z rabatami na zakupy w firmach Komfort, Fachowiec, Domino Łazienki, Komandor, Witek Home i innych. Książeczka na pewno okaże się przydatna podczas urządzania Twojego wymarzonego domu!
Książeczka z rabatami do takich firm jak: Komfort, Domino Łazienki, Fachowiec, Vox, Komandor, Witek Home i innych
Gwarancja
bezpiecznych zakupów
Dodatkowe pakiety projektowe
- Kosztorys inwestorski 950 zł
- Zielony pakiet z pompą ciepła 750 zł
- Aktualizacja do WT2021 850 zł