Dane techniczne
- Powierzchnia użytkowa 136.60 m²
- Powierzchnia zabudowy 154.00 m²
- Kubatura 905.00 m³
- Kąt nachylenia dachu 40.00°
- Wysokość budynku 8.60 m
- Min. wymiary działki 24.00x20.35 m
- Garaż 29.90 m²
- Pracownia HG ATELIER
Technologia budowy
Ściany zewnętrzne: pustak ceramiczny MAX 29cm + styropian 15cm; Ściany wewnętrzne: cegła kratówka 25cm (nośne), cegła kratówka 12cm (działowe);
Strop żelbetowy 12cm; Schody żelbetowe wspornikowe. Konstr. dachu drewniana, Krycie dachówką ceramiczną.
Opis
Dom jednorodzinny, przeznaczony dla 4 - 5 osobowej rodziny. Budynek wolnostojący, parterowy (niepodpiwniczony) z użytkowym poddaszem. W budynku zaprojektowano dwie strefy: dzienną (parter), w skład której wchodzą - wiatrołap; hall; łazienka; kuchnia, jadalnia; salon; pokój; spiżarnia; 2 X pom. gospodarcze i garaż;
oraz strefę nocną (poddasze), w której znajdują się trzy sypialnie, garderoba, łazienka i pralnia oraz strych.
Rzuty
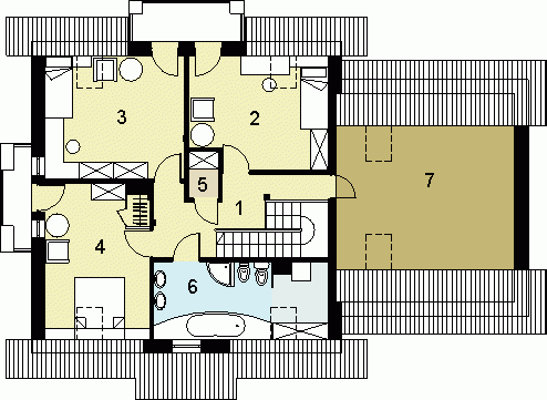
RZUT PARTERU
- wiatrołap/garderoba 4,80 m2
- hallschody 9,20 m2
- łazienka 3,10 m2
- kuchnia 10,40 m2
- spiżarnia 1,10 m2
- salon/jadalnia 36,20 m2
- pokój 9,80 m2
- kotłownia 5,90 m2
- garaż 29,90 m2
- pom.gospodarcze 8,10 m2
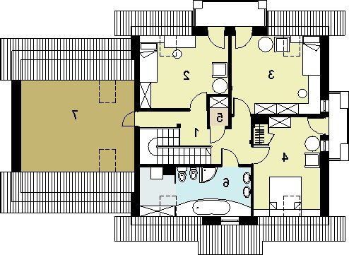
RZUT PODDASZA
- ,40 m2 112,70 m2
Rzuty
RZUT PARTERU
- wiatrołap/garderoba 4,80 m2
- hallschody 9,20 m2
- łazienka 3,10 m2
- kuchnia 10,40 m2
- spiżarnia 1,10 m2
- salon/jadalnia 36,20 m2
- pokój 9,80 m2
- kotłownia 5,90 m2
- garaż 29,90 m2
- pom.gospodarcze 8,10 m2
RZUT PODDASZA
- ,40 m2 112,70 m2
Dbamy o swoich Klientów, jak nikt inny!
Do każdego projektu zakupionego za pośrednictwem serwisu kreoDOM.pl otrzymasz książeczkę z rabatami na zakupy w firmach Komfort, Fachowiec, Domino Łazienki, Komandor, Witek Home i innych. Książeczka na pewno okaże się przydatna podczas urządzania Twojego wymarzonego domu!
Książeczka z rabatami do takich firm jak: Komfort, Domino Łazienki, Fachowiec, Vox, Komandor, Witek Home i innych
Gwarancja
bezpiecznych zakupów
Dodatkowe pakiety projektowe
- Kosztorys inwestorski cena ustalana telefonicznie