Dane techniczne
- Powierzchnia użytkowa 134.80 m²
- Powierzchnia zabudowy 135.40 m²
- Kubatura 821.00 m³
- Kąt nachylenia dachu 40.00°
- Wysokość budynku 8.60 m
- Min. wymiary działki 23.35x21.00 m
- Garaż 19.30 m²
- Pracownia HG ATELIER
Technologia budowy
Ściany zewnętrzne: pustak ceramiczny MAX 29cm + styropian 15cm;
Ściany wewnętrzne: cegła kratówka 25cm (nośne), cegła kratówka 12cm (działowe);
Strop żelbetowy 12cm; Schody żelbetowe wspornikowe.
Konstr. dachu drewniana, Krycie dachówką ceramiczną.
Opis
W budynku zaprojektowano dwie strefy:
dzienną (parter), w skład której wchodzą - wiatrołap; hall; łazienka; kuchnia, jadalnia; salon; pokój z łazienką; garderoba; 2 X pom. gospodarcze i garaż;
oraz strefę nocną (poddasze), w której znajdują się trzy sypialnie, garderoba, łazienka i pralnia oraz strych(lub pokój).
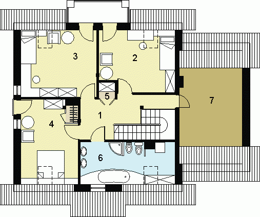
Rzuty
PARTER
- wiatrołap/garderoba 4,80 m2
- hall/schody 9,20 m2
- łazienka 3,10 m2
- kuchnia 10,20 m2
- salon/jadalnia 30,70 m2
- garderoba 1,10 m2
- pokój 10,40 m2
- łazienka 2,80 m2
- kotłownia 5,90 m2
- garaż 19,30 m2
- pom.gospodarcze 5,30 m2
PODDASZE
- łaz./pralnia 10,10 m2/13,70
- strych/pokój 9,40 m2/24,80
Rzuty
PARTER
- wiatrołap/garderoba 4,80 m2
- hall/schody 9,20 m2
- łazienka 3,10 m2
- kuchnia 10,20 m2
- salon/jadalnia 30,70 m2
- garderoba 1,10 m2
- pokój 10,40 m2
- łazienka 2,80 m2
- kotłownia 5,90 m2
- garaż 19,30 m2
- pom.gospodarcze 5,30 m2
PODDASZE
- łaz./pralnia 10,10 m2/13,70
- strych/pokój 9,40 m2/24,80
Dbamy o swoich Klientów, jak nikt inny!
Do każdego projektu zakupionego za pośrednictwem serwisu kreoDOM.pl otrzymasz książeczkę z rabatami na zakupy w firmach Komfort, Fachowiec, Domino Łazienki, Komandor, Witek Home i innych. Książeczka na pewno okaże się przydatna podczas urządzania Twojego wymarzonego domu!
Książeczka z rabatami do takich firm jak: Komfort, Domino Łazienki, Fachowiec, Vox, Komandor, Witek Home i innych
Gwarancja
bezpiecznych zakupów
Dodatkowe pakiety projektowe
- Kosztorys inwestorski cena ustalana telefonicznie