Dane techniczne
- Powierzchnia użytkowa 125.40 m²
- Powierzchnia zabudowy 100.00 m²
- Kubatura 630.00 m³
- Kąt nachylenia dachu 37.00°
- Wysokość budynku 8.00 m
- Min. wymiary działki 18.80x18.40 m
- Pracownia HG ATELIER
Technologia budowy
Ściany:
Ściany zewnętrzne warstwowe:
* pustak ceramiczny MAX 29 cm
* styropian 15 cm
Ściany wewnętrzne:
* cegła kratówka 25 cm (nośne)
* cegła kratówka 12 cm (działowe)
Stropy:
Strop gęstożebrowy TERIVA 24 cm
Wykończenie:
Schody żelbetowe
Dach:
Konstrukcja dachu drewniana. Kąt nachylenia połaci 37
Opis
Dom jednorodzinny, przeznaczony dla 5 osobowej rodziny
Budynek wolnostojący, parterowy (niepodpiwniczony) z użytkowym poddaszem.
W budynku zaprojektowano dwie strefy:
* dzienną (parter), w skład której wchodzą - wiatrołap; hall; W.C.+C.O.; kuchnia; biblioteka; salon
* oraz strefę nocną (poddasze), w której znajdują się cztery sypialnie i łazienka.
Budynek o wymiarach 10,0 m
Rzuty
RZUT PARTERU
- Wiatrołap 3,6 m2
- W.C. C.O. 3,8 m2
- Hall Schody 15,0 m2
- Kuchnia 11,2 m2
- Biblioteka 11,4 m2
- Salon 26,2 m2
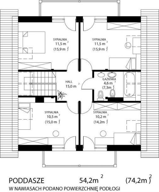
RZUT PODDASZA
- Hall 5,9 m2
- Sypialnia 11,5 m2
- Sypialnia 11,5 m2
- Sypialnia 10,5 m2
- Sypialnia 10,2 m2
- Łazienka 4,6 m2
Rzuty
RZUT PARTERU
- Wiatrołap 3,6 m2
- W.C. C.O. 3,8 m2
- Hall Schody 15,0 m2
- Kuchnia 11,2 m2
- Biblioteka 11,4 m2
- Salon 26,2 m2
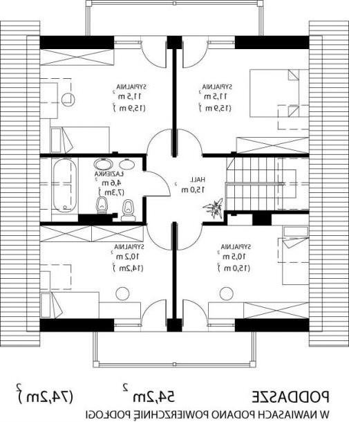
RZUT PODDASZA
- Hall 5,9 m2
- Sypialnia 11,5 m2
- Sypialnia 11,5 m2
- Sypialnia 10,5 m2
- Sypialnia 10,2 m2
- Łazienka 4,6 m2
Dbamy o swoich Klientów, jak nikt inny!
Do każdego projektu zakupionego za pośrednictwem serwisu kreoDOM.pl otrzymasz książeczkę z rabatami na zakupy w firmach Komfort, Fachowiec, Domino Łazienki, Komandor, Witek Home i innych. Książeczka na pewno okaże się przydatna podczas urządzania Twojego wymarzonego domu!
Książeczka z rabatami do takich firm jak: Komfort, Domino Łazienki, Fachowiec, Vox, Komandor, Witek Home i innych
Gwarancja
bezpiecznych zakupów
Dodatkowe pakiety projektowe
- Kosztorys inwestorski cena ustalana telefonicznie