Ściany zewnętrzne i wewnętrzne nośne z betonu komórkowego (24cm), docieplone styropianem 20cm. Ścianki wewnętrze działowe na parterze z bloczków, na poddaszu z płyt GK bądź z bloczków. Ściany fundamentowe z bloczków betonowych. Strop gęstożebrowy Teriva. Wszystkie technologie można zmienić na etapie adaptacji. Elewacje wykończone tynkiem mineralnym. Tynki wewnętrzne gipsowe lub cementowo-wapienne. Dachówka cementowa lub ceramiczna. Stolarka okienna drewniana lub PCV.
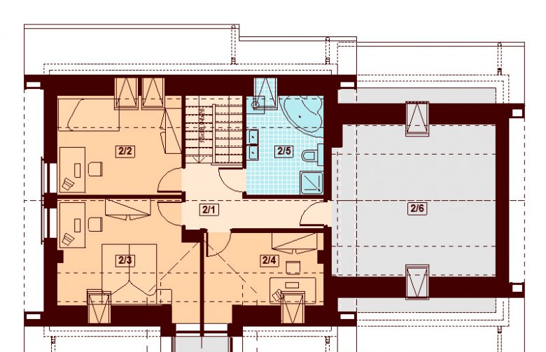
Kendra XS 2M to funkcjonalny, atrakcyjny wizualnie dom o prostej i taniej, dokładnie przemyślanej konstrukcji, przeznaczony dla 3-6 osobowej rodziny, o eleganckiej formie i współczesnej estetyce. Jest to budynek parterowy z użytkowym poddaszem, niepodpiwniczony, z garażem dwustanowiskowym. Na parterze zlokalizowana jest obszerna strefa dzienna składająca się z kuchni (która w zależności od potrzeb może być zamykana lub otwarta) słonecznej jadalni oraz salonu otwartego na taras i ogród. Uzupełnieniem kuchni jest pojemna spiżarnia. Schody w holu w zależności od potrzeb mogą być otwarte na salon powiększając w ten sposób przestrzeń dzienną i stanowiąc ciekawy element architektoniczny, mogą też być odizolowane ścianką działową od salonu. Dzięki doświetleniu strefy dziennej zarówno od strony ogrodu jak i z boku dom nadaje się na każdą działkę, zarówno z wjazdem od północy jak i od południa, wschodu bądź zachodu. Dodatkowo na parterze zaprojektowano pokój gościnny / gabinet, łazienkę oraz garderobę / schowek z przejściem do garażu oraz pomieszczenie gospodarcze (kotłownię) dostępną z garażu z wyjściem na ogród dzięki czemu może ona stanowić też miejsce składowania narzędzi ogrodowych. W wiatrołapie przewidziano miejsce na dużą szafę. Na poddaszu znalazły się trzy pokoje oraz wygodna i ustawna łazienka a także strych - może on być przeznaczony na dodatkowy pokój, garderobę, pralnię, siłownię, saunę czy salę z kinem domowym. Strych może zostać też podzielony na kilka pomieszczeń o różnych funkcjach. W projektowaniu domu szczególną uwagę zwrócono na atrakcyjny wygląd zewnętrzny, proporcjonalność bryły budynku, odpowiednie doświetlenie i funkcjonalne rozplanowanie pomieszczeń przy zachowaniu prostoty konstrukcji oraz zwartości bryły domu. Architektura domu to połączenie tradycji z nowoczesnością oraz elegancji z dbałością o proporcje i estetykę. Dom zaprojektowano jako energooszczędny. Dostępne są również inne wersje projektu (Kendra XS BIS, Kendra XS, Kendra Mała BIS, Kendra Mała, Kendra BIS, Kendra, Kendra 2M).