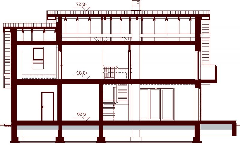
Ściany zewnętrzne i wewnętrzne nośne z betonu komórkowego (24cm), docieplone (15cm). Ścianki wewnętrze działowe na parterze z bloczków, na poddaszu z płyt GK bądź z bloczków. Ściany fundamentowe z bloczków betonowych. Strop gęstożebrowy Teriva. Wszystkie technologie można zmienić na etapie adaptacji.
Elewacje wykończone tynkiem mineralnym malowanym farbą silikatową. Tynki wewnętrzne gipsowe lub cementowo-wapienne. Dachówka cementowa lub ceramiczna. Stolarka okienna drewniana lub PCV.
Kendra to niezwykle atrakcyjny, funkcjonalny dom o prostej i taniej, dokładnie przemyślanej konstrukcji, przeznaczony dla 3-6 osobowej rodziny, o eleganckiej formie i współczesnej estetyce. Jest to budynek parterowy z użytkowym poddaszem, niepodpiwniczony, z garażem jednostanowiskowym. Na parterze zlokalizowana jest obszerna strefa dzienna składająca się z kuchni (która w zależności od potrzeb może być zamykana lub otwarta) słonecznej jadalni oraz salonu otwartego na taras i ogród. Uzupełnieniem kuchni jest pojemna spiżarnia. Schody w holu w zależności od potrzeb mogą być otwarte na salon powiększając w ten sposób przestrzeń dzienną i stanowiąc ciekawy element architektoniczny, mogą też być odizolowane ścianką działową od salonu (patrz rzuty). Dzięki doświetleniu strefy dziennej zarówno od strony ogrodu jak i z boku dom nadaje się na każdą działkę, zarówno z wjazdem od północy jak i od południa, wschodu bądź zachodu. Dodatkowo na parterze zaprojektowano pokój gościnny / gabinet, łazienkę oraz garderobę / schowek z przejściem do garażu oraz pomieszczenie gospodarcze (kotłownię) dostępną z garażu z wyjściem na ogród dzięki czemu może ona stanowić też miejsce składowania narzędzi ogrodowych. W wiatrołapie przewidziano miejsce na dużą szafę wnękową. Na poddaszu znalazły się trzy pokoje oraz obszerna łazienka i strych z możliwością przeznaczenia na dodatkowy pokój, garderobę, pralnię/suszarnię, siłownię czy saunę. Architektura domu to połączenie tradycji z nowoczesnością oraz elegancji z dbałością o proporcje i estetykę. Dom zaprojektowano jako energooszczędny. Dostępna również wersja projektu na mniejszą działkę (dom Kendra Mała) oraz wersja z garażem dwustanowiskowym (dom Kendra 2M).
1. WIATROŁAP5,41 m2
2. HOL5,48 m2
3. KUCHNIA10,14 m2
4. SPIŻARNIA2,41 m2
5. SALON JADALNIA27,00 m2
6. POKÓJ / GABINET11,43 m2
7. ŁAZIENKA3,92 m2
8. GARDEROBA / SCHOWEK7,42 m2
9. POM. GOSPODARCZE5,92 m2
10. GARAŻ16,09 m2