Dane techniczne
- Powierzchnia użytkowa 97.00 m²
- Powierzchnia zabudowy 73.50 m²
- Kubatura 415.30 m³
- Kąt nachylenia dachu 40.00°
- Wysokość budynku 6.76 m
- Min. wymiary działki 18.00x15.50 m
- Pracownia MOJ-DOM
Technologia budowy
Ściany:
Projekt dostępny w technologii szkieletowej i bala drewnianego.
Fundamenty: żelbetowe, wylewane
Ściany zewnętrzne: murowane, jednowarstwowe, beton komórkowy lub ceramika
Stropy:
drewniany, belkowy, otwarty
Wykończenie:
Schody: drewniane
Dach
Pokrycie dachu: dachówka betonowa
Opis
Budynek jednorodzinny, parterowy, z poddaszem mieszkalnym, niepodpiwniczony, 4 pokoje, kuchnia
Rzuty
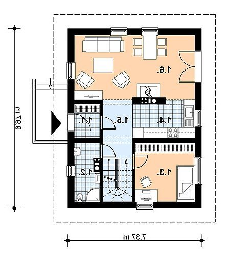
1. wiatrołap2.8 m2
2. łazienka4.7 m2
3. sypialnia10.8 m2
4. kuchnia6.5 m2
5. korytarz7.6 m2
6. pokój dzienny23.7 m2
1. hall10.0 m2
2. sypialnia11.1 m2
3. pom. gospodarcze4.7 m2
4. garderoba6.5 m2
5. sypialnia17.2 m2
6. łazienka6.3 m2
Rzuty
1. wiatrołap2.8 m2
2. łazienka4.7 m2
3. sypialnia10.8 m2
4. kuchnia6.5 m2
5. korytarz7.6 m2
6. pokój dzienny23.7 m2
1. hall10.0 m2
2. sypialnia11.1 m2
3. pom. gospodarcze4.7 m2
4. garderoba6.5 m2
5. sypialnia17.2 m2
6. łazienka6.3 m2
Dbamy o swoich Klientów, jak nikt inny!
Do każdego projektu zakupionego za pośrednictwem serwisu kreoDOM.pl otrzymasz książeczkę z rabatami na zakupy w firmach Komfort, Fachowiec, Domino Łazienki, Komandor, Witek Home i innych. Książeczka na pewno okaże się przydatna podczas urządzania Twojego wymarzonego domu!
Książeczka z rabatami do takich firm jak: Komfort, Domino Łazienki, Fachowiec, Vox, Komandor, Witek Home i innych
Gwarancja
bezpiecznych zakupów
Dodatkowe pakiety projektowe