Dane techniczne
- Powierzchnia użytkowa 95.70 m²
- Powierzchnia zabudowy 70.00 m²
- Kubatura 402.10 m³
- Kąt nachylenia dachu 40.00°
- Wysokość budynku 6.78 m
- Min. wymiary działki 18.00x15.50 m
- Pracownia MOJ-DOM
Technologia budowy
Ściany:
Projekt dostępny również w technologii szkieletu drewnianego.
Fundamenty: żelbetowe, wylewane
Ściany zewnętrzne: z bali drewnianych gr. 12, 16, 20, 24 cm. ocieplone od wewnątrz wełną mineralną lub 52 cm bez ocieplenia
Stropy:
Strop: drewniany, belkowy, otwarty
Wykończenie:
Schody: drewniane
Dach
Pokrycie dachu: dachówka betonowa
Opis
Budynek jednorodzinny, parterowy, z poddaszem mieszkalnym, niepodpiwniczony, 4 pokoje, kuchnia
Rzuty
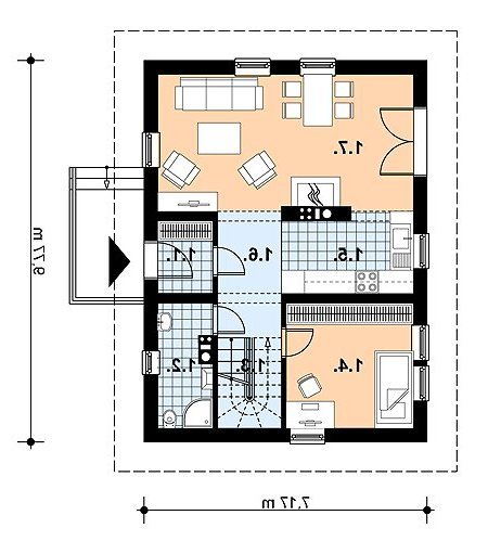
1. wiatrołap2.8 m2
2. łazienka4.6 m2
3. klatka schodowa3.9 m2
4. sypialnia10.6 m2
5. kuchnia6.7 m2
6. korytarz5.6 m2
7. pokój dzienny23.5 m2
1. hall8.5 m2
2. sypialnia10.8 m2
3. pom. gospodarcze4.6 m2
4. garderoba7.1 m2
5. sypialnia16.0 m2
6. łazienka6.5 m2
Rzuty
1. wiatrołap2.8 m2
2. łazienka4.6 m2
3. klatka schodowa3.9 m2
4. sypialnia10.6 m2
5. kuchnia6.7 m2
6. korytarz5.6 m2
7. pokój dzienny23.5 m2
1. hall8.5 m2
2. sypialnia10.8 m2
3. pom. gospodarcze4.6 m2
4. garderoba7.1 m2
5. sypialnia16.0 m2
6. łazienka6.5 m2
Dbamy o swoich Klientów, jak nikt inny!
Do każdego projektu zakupionego za pośrednictwem serwisu kreoDOM.pl otrzymasz książeczkę z rabatami na zakupy w firmach Komfort, Fachowiec, Domino Łazienki, Komandor, Witek Home i innych. Książeczka na pewno okaże się przydatna podczas urządzania Twojego wymarzonego domu!
Książeczka z rabatami do takich firm jak: Komfort, Domino Łazienki, Fachowiec, Vox, Komandor, Witek Home i innych
Gwarancja
bezpiecznych zakupów
Dodatkowe pakiety projektowe